
VON POLL IMMOBILIEN Wismar - André Schweimer
Herr André Schweimer
004 ···
Nr. anzeigenPreise & Kosten
Provision für Käufer
Käuferprovision beträgt 3,57 % (inkl. MwSt.) des beurkundeten Kaufpreises
Lage
Wismar ist die zweitgrößte Hafenstadt Mecklenburg-Vorpommerns und bezaubert durch ihre einzigartige historische Altstadt. Diese wurde 2002 zusammen mit der Hansestadt Stralsund unter dem Titel
" Historische Altstädte Stralsund und Wismar " von der UNESCO zum Weltkulturerbe ernannt. Vor allem die architektonischen...
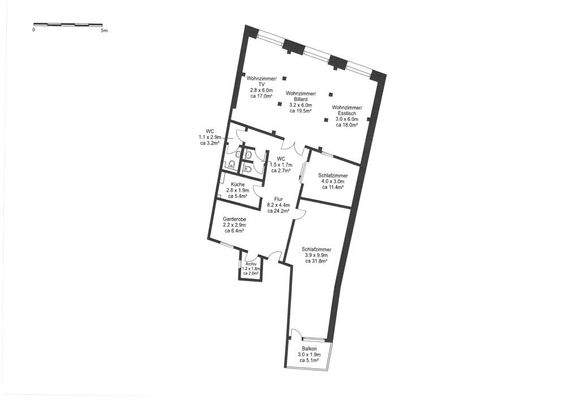
Die Wohnung
Wohnanlage
Energie & Heizung
Warum sehe ich diese Anzeige? – Du siehst diese Anzeige basierend auf Ihrer Navigation auf unserer Website und den Suchkriterien, die du verwendet hast.
Energieausweistyp
Verbrauchsausweis
Gebäudetyp
Wohngebäude
Baujahr laut Energieausweis
1996
Wesentliche Energieträger
FERN
Gültigkeit
bis 16.09.2028
Effizienzklasse
C
Endenergieverbrauch
78,30 kWh/(m²·a) - Warmwasser enthalten
Weitere Energiedaten
Energieträger
Gas
Heizungsart
Zentralheizung
Details
Objektbeschreibung
Wir freuen uns, Ihnen eine geräumige und perfekt gepflegte Wohnung in einer schönen zentralen Altstadtlage präsentieren zu können. Die Immobilie wurde im Jahr 1900 erbaut und 1996 vollständig modernisiert. Bei der Renovierung erfolgte eine umfassende Kernsanierung, um dem heutigen Luxusstandard gerecht zu werden. Das Haus...
Weitere Informationen
Sonstiges
Es liegt ein Energieverbrauchsausweis vor.
Dieser ist gültig bis 16.9.2028.
Endenergieverbrauch beträgt 78.30 kwh/(m²*a).
Wesentlicher Energieträger der Heizung ist Fernwärme.
Das Baujahr des Objekts lt. Energieausweis ist 1996.
Die Energieeffizienzklasse ist C.
GELDWÄSCHE: Als...
Anbieter der Immobilie
VON POLL IMMOBILIEN Wismar - André Schweimer
ABC-Straße 2, 23966 Wismar
Online-ID: 2bs725j
Referenznummer: 23164017
Finde Angebote wie dieses
Hier geht es zu unserem Impressum, den Allgemeinen Geschäftsbedingungen, den Hinweisen zum Datenschutz und nutzungsbasierter Online-Werbung.