
Joos Immobilien
Herr Michael Wulf
016 ···
Nr. anzeigenPreise & Kosten
Provision für Käufer
provisionsfrei
Lage
Mahlzow liegt auf der Sonneninsel Usedom, ca. 220 km nordwestlich von Berlin und ca. 330 km nordöstlich von Hamburg. Der Ort besitzt eine Bahnstation, von der man in 13 min Zinnowitz erreicht oder mit dem Auto weniger als 10 min benötigt. Die Herzogen-Stadt Wolgast ist über die Peene-Brücke mit dem Rad in ca. 8 min erreichbar...
Das Haus
Kategorie
Einfamilienhaus
Baujahr
2026
Bezug
2025
Energie & Heizung
Warum sehe ich diese Anzeige? – Du siehst diese Anzeige basierend auf Ihrer Navigation auf unserer Website und den Suchkriterien, die du verwendet hast.
Energieausweistyp
Bedarfsausweis
Gebäudetyp
Wohngebäude
Baujahr laut Energieausweis
2024
Wesentliche Energieträger
Photovoltaik
Gültigkeit
04.08.2023 bis 04.08.2033
Effizienzklasse
A+
Endenergiebedarf
24,00 kWh/(m²·a)
Weitere Energiedaten
Haustyp
Fertighaus, KfW 40
Heizungsart
Fußbodenheizung, Luft-/Wasser-Wärmepumpe
Details
Objektbeschreibung
...wo andere Urlaub machen...
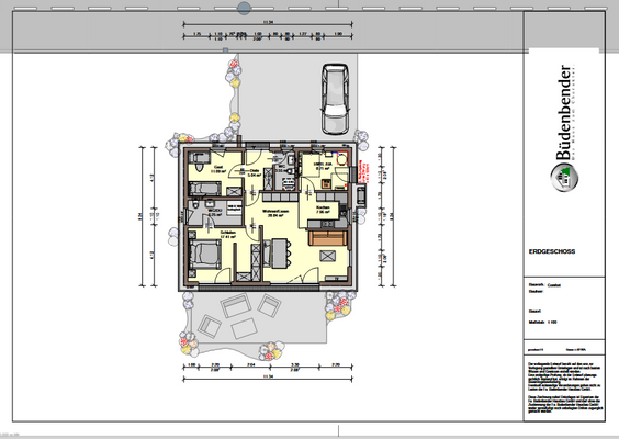
Der Bebauungsplan ermöglicht uns die Bebauung mit einem Bungalow oder auch ein Satteldachhaus über 2 Etagen nach Ihren Wünschen.
Sie entscheiden über Haustyp, die Raum -Aufteilung und die Innenausstattung.
Unser Angebot hier:
KOMFORTABEL LEBEN AUF EINER EBENE
Der Bungalow Rivano...
Weitere Informationen
Allgemein und Sonstiges
Bei dem angebotenen Objekt handelt es sich um einen Neubau mit einem Beispie-Grundriss. Entsprechend Ihrer Wünsche und Vorstellungen passen wir natürlich Ihren Grundriss an. Alle Details zu Ihren Wünschen, der Bauweise und Qualitäten, besprechen wir gerne in einem persönlichen Treffen Im Standard...
Dokumente
Anbieter der Immobilie
Joos Immobilien
Eibenweg 2, 38442 Wolfsburg
Online-ID: 2bv9m56
Referenznummer: HPJ+MW-Ma-P4 020924
Finde Angebote wie dieses
Hier geht es zu unserem Impressum, den Allgemeinen Geschäftsbedingungen, den Hinweisen zum Datenschutz und nutzungsbasierter Online-Werbung.