
COBUS Immobilien
Frau Kira Mormann
+49 ···
Nr. anzeigenPreise & Kosten
Kaution
3150
Provision für Mieter
provisionsfrei
Warum sehe ich diese Anzeige? – Du siehst diese Anzeige basierend auf Ihrer Navigation auf unserer Website und den Suchkriterien, die du verwendet hast.
Lage
Das Gebäude befindet sich in ländlicher Lage mit guter Verkehrsanbindung. Die Autobahn A30 erreichen Sie in etwa 10 Minuten mit dem Auto, der Bahnhof in Bünde ist rund 12 Autominuten entfernt. Der nächstgelegene Flughafen ist je nach Verkehrslage in etwa 50 bis 60 Minuten erreichbar.
Büro-/Praxisfläche
Kategorie
Bürofläche
Bezug
sofort
Derzeitige Nutzung
frei
Geschoss
2. Geschoss
Energie & Heizung
Warum sehe ich diese Anzeige? – Du siehst diese Anzeige basierend auf Ihrer Navigation auf unserer Website und den Suchkriterien, die du verwendet hast.
Weitere Energiedaten
Energieträger
Öl
Heizungsart
Zentralheizung
Details
Objektbeschreibung
Das angebotene Wohn- und Geschäftshaus ist ein liebevoll saniertes Fachwerkhaus in ruhiger, ländlicher Lage von Enger. Die Immobilie verbindet historischen Charme mit modernem Komfort und bietet ein angenehmes Arbeitsumfeld in naturnaher Umgebung.
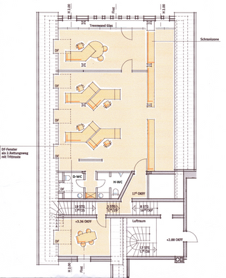
Die Büroeinheiten im 1. Obergeschoss sind über einen separaten Eingang...
Ausstattung
Die hochwertig sanierte Bürofläche ist Teil eines gepflegten Wohnensembles. Sie bietet ein durchdachtes Arbeitsumfeld mit besonderem Charakter.
Im 1. Obergeschoss befindet sich eine offen gestaltete Arbeitsfläche, die durch eine Glaswand funktional gegliedert ist. Die klare Raumstruktur ermöglicht sowohl konzentriertes...
Anbieter der Immobilie
COBUS Immobilien
Nickelstr. 21, 33378 Rheda-Wiedenbrück
Online-ID: 2bwdp5n
Finde Angebote wie dieses
Hier geht es zu unserem Impressum, den Allgemeinen Geschäftsbedingungen, den Hinweisen zum Datenschutz und nutzungsbasierter Online-Werbung.