

Eden-Ehbrecht Immobilien & Marketing GbR
Herr Ingo Eden
044 ···
Nr. anzeigenPreise & Kosten
Provision für Käufer
2,975% vom Kaufpreis inkl. gesetzlicher Mehrwertsteuer von derzeit 19%. inkl. MwSt.
Die Provision ist verdient durch Nachweis oder Vermittlung un dist fällig bei Notarvertragsunterzeichnung.
Lage
Das Grundstück liegt im Südwesten Oldenburgs im Stadtteil Eversten am Schlagbaumweg, einer Nebenstraße
der Bundesstraße 401 (Hundmühler Straße) in einem eingeschränkten Gewerbegebiet.
Im Norden schließt ein reines Wohngebiet an, östlich liegt eine Reihenhausbebauung und im Westen grenzt eine kleine KFZ-Werkstatt an...
Büro-/Praxisfläche
Kategorie
Bürogebäude
Baujahr
1995
Bezug
Nach Vereinbarung
Energie & Heizung
Warum sehe ich diese Anzeige? – Du siehst diese Anzeige basierend auf Ihrer Navigation auf unserer Website und den Suchkriterien, die du verwendet hast.
Wärme
Energieausweistyp
Verbrauchsausweis
Gebäudetyp
Nicht-Wohngebäude
Baujahr laut Energieausweis
1995
Wesentliche Energieträger
Gas
Gültigkeit
30.08.2023 bis 29.08.2033
Endenergieverbrauch (Wärme)
84,86 kWh/(m²·a)
Weitere Energiedaten
Energieträger
Gas
Details
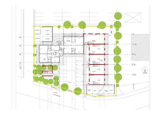
Objektbeschreibung
VOLLVERMIETETES OBJEKT // 72.700 EURO JAHRESMIETEINNAHMEN
Das angebotene und ab 1.4.2024 vollvermietete Objekt steht auf einem Grundstück mit einer Größe von 1.150 m². Gemäß Bebauungsplan 427 ist eine 2- geschossige Bebauung (Gesamthöhe 9 m) mit einer GRZ von 0.6, sowie einer GFZ von 1.0 zulässig.
In dem Objekt...
Ausstattung
/// Gebäude-Rohbau
// Gründung:
Bodenaustausch, Flachgründung mit tragender Sohlplatte, bzw. Streifenfundamente frostfrei, Sohlplatte gem. Statik WU-Beton, Abklebung, Wärmedämmung, schwimmender Estrich, Anstrich.
// Kelleraußenwände:
Die Kelleraußenwände sind in Ortbeton (Doppelwandplatten 30 cm)...
Preisinformation
15 Stellplätze
Weitere Informationen
Sonstiges
///// BESICHTIGUNG & INFORMATIONEN
Gerne erhalten Sie mehr Informationen oder einen Besichtigungstermin. Kontaktieren Sie uns gerne einfach über die Chat Funktion des interaktiven Exposés (erhalten Sie automatisch nach Anfrage) per Email unter: ingo.eden@eden-ehbrecht-immobilien.de oder telefonisch...
Anbieter der Immobilie

Online-ID: 2bwlz5c
Referenznummer: 115920060#GJUNJ
Finde Angebote wie dieses
Hier geht es zu unserem Impressum, den Allgemeinen Geschäftsbedingungen, den Hinweisen zum Datenschutz und nutzungsbasierter Online-Werbung.