

L&S Immobilienservice
Frau Nina Riegerbauer
066 ···
Nr. anzeigenPreise & Kosten
Provision für Käufer
3%+USt
Lage
Im Herzen des Mittelburgenlandes in nächster Nähe des Kurorts Bad Tatzmannsdorf befindet sich dieses Stadthaus direkt im Zentrum von Oberwart.
Die Apotheke ist fußläufig erreichbar und zum EO sind es ca 15 min zu Fuß.
Zur Autobahnauffahrt sind es ca 10 Minuten.
Das Haus
Kategorie
Einfamilienhaus
Bezug
sofort
Energie & Heizung
Warum sehe ich diese Anzeige? – Du siehst diese Anzeige basierend auf Ihrer Navigation auf unserer Website und den Suchkriterien, die du verwendet hast.
Heizwärmebedarf (HWB)
39,00 kWh/(m²·a)
Gesamtenergieeffizienz (fGEE)
0,73
Details
Objektbeschreibung
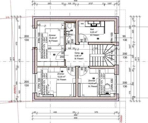
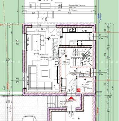
Inmitten der Bezirkshauptstadt Oberwart, ruhig in einer Nebenstraße gelegen, steht dieses neu errichtete Wohnhaus.
Das Grundstück ist rechteckig und erstreckt sich über ca. 420m².
Vor dem Eingangsbereich befindet sich ein Doppelcarport, von dem aus man über eine überdachte Treppe in den Wohnbereich und in den...
Weitere Informationen
Stichworte
Carport vorhanden, Anzahl Balkone: 1, Balkon-Terrassen-Fläche: 40,00 m²
Anbieter der Immobilie
L&S Immobilienservice
Ressavarstraße 44, 8230 HARTBERG

Online-ID: 2bynh52
Referenznummer: 1365669
Finde Angebote wie dieses
Günstige Immobilienfinanzierung einfach online berechnen
Persönliches Angebot berechnenWarum sehe ich diese Werbung? – Du siehst diese Werbung basierend auf Deiner Navigation auf unserer Website und der von Dir verwendeten Suchkriterien.
Diese Werbung wird bezahlt von durchblicker
Werbung melden
Hier geht es zu unserem Impressum, den Allgemeinen Geschäftsbedingungen, den Hinweisen zum Datenschutz und nutzungsbasierter Online-Werbung.