
ISS Communication Services GmbH
Frau Hannah Jenss
+49 ···
Nr. anzeigenPreise & Kosten
Kaution
3 MM
Provision für Mieter
provisionsfrei
Warum sehe ich diese Anzeige? – Du siehst diese Anzeige basierend auf Ihrer Navigation auf unserer Website und den Suchkriterien, die du verwendet hast.
Lage
Fußläufig erreichen Sie verschiedene Einkaufsmöglichkeiten für den täglichen Bedarf, Cafés und Restaurants. In der Nähe befinden sich verschiedene Schulen, ein Kindergarten etc. Das Solemio Erlebnis- und Solebad oder die Elbe sind in wenigen Minuten mit dem PKW erreichbar.
Die nächste Bushaltestelle ist einen kurzen Fußweg...
Büro-/Praxisfläche
Kategorie
Shared Office
Baujahr
1979
Bezug
Auf Anfrage
Energie & Heizung
Warum sehe ich diese Anzeige? – Du siehst diese Anzeige basierend auf Ihrer Navigation auf unserer Website und den Suchkriterien, die du verwendet hast.
Wärme
Strom
Energieausweistyp
Bedarfsausweis
Gebäudetyp
Nicht-Wohngebäude
Baujahr laut Energieausweis
1979
Wesentliche Energieträger
Gas,Strom
Gültigkeit
seit 20.05.2015
Endenergiebedarf (Wärme)
200,00 kWh/(m²·a)
Endenergiebedarf (Strom)
17,00 kWh/(m²·a)
Details
Objektbeschreibung
Das gemischt genutzte Gebäude stammt aus dem Jahre 1979. Der zweigeschossige Baukörper mit Klinkerfassade fügt sich in die Umgebungsbebauung ein. Das Gelände ist umzäunt und kann mit PKW und LKW befahren werden.
PKW-Stellplätze stehen hier und im nahen Straßenraum zur Verfügung.
Weitere Informationen
Sonstiges
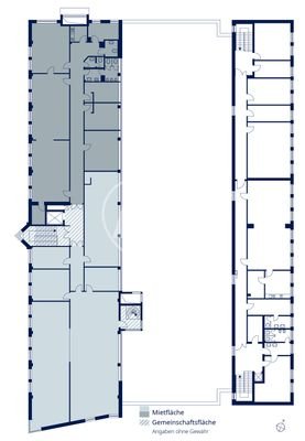
Die Büroflächen befinden sich im 1. Obergeschoss und werden über den Haupteingang auf der Westseite des Gebäudes erschlossen.
Eigene getrennte Sanitäranlagen, eine behindertengerechte Toilette und eine Teeküche befinden sich in der Gesamtmietfläche. Die Fläche ist optional teilbar ab ca. 311...
Dokumente
Anbieter der Immobilie
ISS Communication Services GmbH
Theodorstraße 178, 40472 Düsseldorf
Online-ID: 2bzg35s
Referenznummer: 15934-1-1
Finde Angebote wie dieses
Hier geht es zu unserem Impressum, den Allgemeinen Geschäftsbedingungen, den Hinweisen zum Datenschutz und nutzungsbasierter Online-Werbung.