
Mario Kramer Immobilien GmbH
Herr Mario Kramer
004 ···
Nr. anzeigenPreise & Kosten
Provision für Käufer
provisionsfrei
Lage
Im beliebten Bielefelder Westen, unweit (ca. 1,3 km) der Bielefelder Universität erschließt sich das neue Wohngebiet "Fürfeld". Auf ca. 3 ha entstehen neue Mehrfamilienhäuser, Doppelhäuser und Einfamilienhäuser an drei Stichstraßen. Trotz der Nähe zur Innenstadt (ca. 4,7 km) befindet sich die Fläche mitten im Grünen. Der...
Das Haus
Kategorie
Einfamilienhaus
Baujahr
2024
Energie & Heizung
Warum sehe ich diese Anzeige? – Du siehst diese Anzeige basierend auf Ihrer Navigation auf unserer Website und den Suchkriterien, die du verwendet hast.
Energieausweis: für diesen Gebäudetyp nicht notwendig
Weitere Energiedaten
Heizungsart
Luft-/Wasser-Wärmepumpe, Zentralheizung
Details
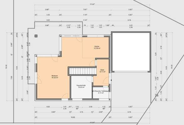
Objektbeschreibung
Dieses moderne Einfamilienhaus auf einem Erbbaurechtsgrundstück, eignet sich ideal für eine 3-5 köpfige Familie. Dieser Haustyp überzeugt dank seiner attraktiven Größe von ca. 160 m² Wohnfläche und einer optimalen Raumaufteilung mit 4 Schlafzimmern. Das Elternschlafzimmer verfügt über ein separates Ankleidezimmer. Im...
Ausstattung
Massive Bauweise, Kunststofffenster 3-fach-Verglasung, Tondachziegel, Fußbodenheizung, Luftwärmepumpe.
Das Haus kann auch ohne Garage zu einem Kaufpreis von 719.000,- € erworben werden.
Preisinformation
1 Garagenstellplatz
Weitere Informationen
Sonstiges
Finanzierung
Eine Baufinanzierung setzt sich grundsätzlich aus dem Kauf vom Grundstück und der Errichtung
des Hauses zusammen. Bei uns haben Sie die einmalige Chance, das Haus inkl. Grundstück
zu kaufen oder im ersten Schritt das Haus zu erwerben und das Grundstück zu pachten.
Zusätzlich sichern...
Anbieter der Immobilie
Online-ID: 2bzsc5y
Referenznummer: B7-2023-140
Finde Angebote wie dieses
Hier geht es zu unserem Impressum, den Allgemeinen Geschäftsbedingungen, den Hinweisen zum Datenschutz und nutzungsbasierter Online-Werbung.