Version: 8.24.0Navigation überspringen
684.900 €
8 Zimmer  •  223 m²  •  682 m² Grundstück
Immowelt logo

Einfamilienhaus zum Kauf • provisionsfrei
684900 €
3.071 €/m²
8 Zimmer  •  223 m²  •  682 m² Grundstück

Mehr Platz zum wohlfühlen!

Für Bauherren, die das Besondere lieben: Das Massivhaus Aura bietet pure Entfaltung für die gesamte Familie. Große und lichtdurchflutete Räume bieten eine unverwechselbare Wohlfühl-Atmosphäre. Zusätzlich bietet das Kellergeschoss Platz für eine Einliegerwohnung für das Mehrgenerationenwohnen oder für Mieter.

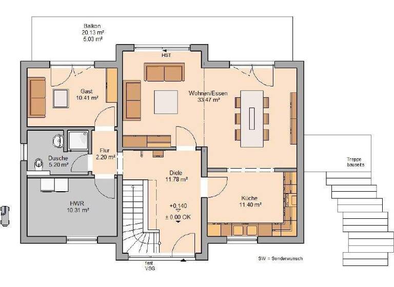
Im Erdgeschoss befindet sich der helle Wohn- und Essbereich mit direkt angrenzender Küche. Durch einen Flur gelangt man in das Gästezimmer. Praktisch ist das direkt angrenzende Duschbad für den Gast. Das Lifestyle-Haus Aura ist ein Haus für Gartenfreunde: In diesem Haus kommen Sie aus allen Räumen im Erdgeschoss direkt in den Garten.

Das Dachgeschoss bietet zwei große Kinderzimmer, ein Home-Office und das Eltern-Schlafzimmer mit separater Ankleide. Das Badezimmer wird aufgrund der Größe und Aufteilung schnell zur individuellen Wellness-Landschaft.

Im Kellergeschoss befindet sich eine Einliegerwohnung mit offen Wohnbereich, Schlafzimmer, Bad und Abstellraum. Im Kellergeschoss befinden sich außerdem ein Raum für die Haustechnik und ein Vorkeller.
Ein Familienhaus mit besonderer Ausstrahlung von allen Seiten!

Dieses Haus wird nach Ihren individuellen Wünschen geplant und ausgestattet!

Merkmale

  • 682 m² Grundstück
  • Keller
  • 2 Stellplätze
  • Gäste-WC
  • Badewanne
Hauptwohnung: 6 Zimmer, offene Küche, Diele, 2 Flure, Bad, Dusche, Ankleide, Hauswirtschaftsraum, Balkon - Einliegerwohnung: 2 Zimmer, offene Küche, Diele, Bad, Abstellraum, Flur

Das gezeigte Traumhaus im Überblick:

+ Schlüsselfertiges Massivhaus im Sinne der Ausstattungsbeschreibung "Easy"
+ Inklusive Bodenplatte

Beste Markenausstattung in jedem Kern-Haus:

+ Zimmermannsmäßiger Dachstuhl aus Konstruktionsvollholz
+ Dacheindeckung mit Betondachsteinen von Braas
+ Hochwertiger Kunstharz-Außenputz für eine langlebige Fassade
+ Vollständige Badausstattung von Villeroy & Boch mit Badewanne und flacher Duschwanne
+ Fliesen von Villeroy & Boch in Bad und WC
+ Haustür mit 3-fach-Sicherheitsverriegelung
+ Erstklassige Innentüren der Marke Herholz
+ Fenster mit 3-Scheiben-Wärmeschutzverglasung und Rollläden
+ Stahl-Holz-Treppe mit individueller Farbgestaltungsmöglichkeit
+ Elektroausstattung inklusive Klingelanlage
+ Rauchmelder für Ihre Sicherheit
+ Alle Leistungen aus einer Hand
+ Alle Planungs- und Architektenleistungen
+ Einsatz regionaler Handwerksbetriebe
+ Individuelle Anpassung auf Ihre Bedürfnisse
+ Auf Wunsch mit Keller erhältlich
+ Auf Wunsch mit weiteren Energietechniken erhältlich

Grundrisse

Grundrisse
1 / 2

Realisiere Dein Projekt

Bausubstanz und Energie

Energieausweis

Der Anbieter hat keine Daten zum Energieausweis hinterlegt.
  • Baujahr2026
  • Zustand der ImmobilieNeubau, Projektiert
  • HeizungsartZentralheizung: Fußbodenheizung
Immowelt logo

Preisdetails

Kaufpreis
684900 €
3.071,30 €/m²
Provision für Käufer
provisionsfrei
Geschätzte Gesamtkosten
732.844 €1
Kaufpreis
684.900 €
Notarkosten (1,5%)
10.274 €
Grunderwerbsteuer (5%)
34.245 €
Grundbucheintrag (0,5%)
3.425 €
1Der angezeigte Wert ist eine automatisch berechnete Schätzung von immowelt.
2Bei den Angaben handelt es sich um ortsübliche Werte. Individuelle Kosten können abweichen.

Lage

address-icon
RengenDaun (54550)
Der Anbieter hat die genaue Adresse nicht freigegeben
Das Baugrundstück befindet sich in Rengen, einem Stadtteil von Daun und liegt ca. 4 km nördlich des Stadtzentrums. Eingebettet in die idyllische und reizvolle Landschaft der Eifel bietet Rengen Ruhe und Erholung

Daun ist an die Bundesautobahn 1 angebunden, die am nahegelegenen Autobahndreieck Vulkaneifel an die Bundesautobahn 48 anschließt. Die Bundesstraße 257 führt durch die Stadt.

Die Innenstadt bietet ein tolles Einkaufserlebnis mit einem breiten Sortiment und vielen inhabergeführten Geschäften, einen zentral gelegenen Stadtgarten für jede Altersgruppe mit zahlreichen Spiel- und Sportgeräten sowie ein modernes Kino für Filmfreunde.
Daun ist auch äußerst familienfreundlich: Neben Kindergärten, Schulen aller Bildungsgänge und zahlreichen Vereinen gibt es ein großes Freizeitangebot - vom Wild-und Erlebnispark Daun bis hin zum Verkehrsgarten zum Fahrradfahren-Lernen.

Das renommierte Krankenhaus stellt mit seinem kompetenten Fachpersonal und einer modernen Ausstattung eine sehr gute medizinische Versorgung sicher.

Weitere Informationen

Sonstiges Kern-Haus baut individuelle und massive Architektenhäuser zu einem attraktiven Preis-Leistungs-Verhältnis - und das bereits mit einer Erfahrung seit 1980.

Maximale Sicherheit bei Kern-Haus:
+ 10 Jahre Gewährleistung auf die wesentlichen Bauleistungen
+ Bis zu 24 Monate Festpreisbindung
+ 50 Jahre Gewährleistung auf das DuoTherm-Mauerwerk
+ Verbindliche Bauzeit
+ Zahlung nach Baufortschritt

Preise und Auszeichnungen von Kern-Haus:
- German Brand Award in den Jahren 2018 und 2021
- Hausbau Design Award: Sieger in den Jahren 2017, 2018, 2019, 2020, 2021, 2022 und 2023
- Deutscher Traumhauspreis: Sieger in den Jahren 2014, 2015, 2016 und 2018 und Silber 2017, 2020 und 2021
- Mittelstandspreis "Top 100" in den Jahren 2014, 2016, 2018, 2020 und 2022
- German Design Award im Jahr 2018

Weitere Informationen

Der gezeigte Preis versteht sich inklusive Grundstück und exklusive der Baunebenkosten.

Weitere Architektenhäuser - https://www.kern-haus.de/haeuser

Kern-Haus in Trier - https://www.kern-haus.de/trier/ Stichworte Stellplatz vorhanden, Anzahl der Schlafzimmer: 5, Anzahl der separaten WCs: 1

Weitere Services

Lust auf eine Besichtigung?
Eine Frage zur Immobilie?
Nachricht hinzufügen
Mit der Nutzung der oben angegebenen Telefonnummer oder durch Klicken auf „Kontaktieren“ akzeptierst Du die Allgemeinen Nutzungsbedingungen, denen Du jederzeit widersprechen kannst. Weitere Informationen zum Datenschutz

Über den Anbieter

Waldstraße 17, 54340 Riol
Frau M. Barton
Frau M. BartonDein Kontakt
Online-ID: 2n98z5k
Referenznummer: TR 5713
Kern Bauträger GmbH
title
Kern Bauträger GmbH
Nachricht hinzufügen
Mit der Nutzung der oben angegebenen Telefonnummer oder durch Klicken auf „Kontaktieren“ akzeptierst Du die Allgemeinen Nutzungsbedingungen, denen Du jederzeit widersprechen kannst. Weitere Informationen zum Datenschutz
Wie zufrieden bist du mit dieser Seite (nicht mit der Immobilie selbst)?