Version: 8.22.6Navigation überspringen
4.950 €
330 m² Bürofläche
Immowelt logo

Büro zur Miete
4.950 €
330 m² Bürofläche

Hochmodernes Büro in Toplage Köln Ossendorf

Das Objekt befindet sich in einem der angesagtesten Büroviertel Kölns. Der moderne Ausbau und die offene Gestaltung sprechen für sich und garantieren eine gute und produktive Arbeitsumgebung. Die gute Anbindung sowohl mit dem öffentlichen Nahverkehr als auch mit dem PKW garantieren eine gute Erreichbarkeit.
Das Objekt ist absofort verfügbar.
Nach Rücksprache ist auch eine frühere Verfügbarkeit möglich.

Merkmale

  • frei ab sofort
  • 3. Geschoss
  • 2 Stellplätze
Das Objekt ist neben einer modernen Bauweise mit vielen Glaselementen mit einem modernen Energie und Wärmeversorgung ausgestattet. Durch eine Kraft-Wärme-Kopplung werden die Heizkosten noch geringer gehalten, als durch die moderne und nachhaltige Bauweise üblich ist.
Der offene Teeküchenbereich lädt zu produktiven Gesprächen in der Pause ein und ist ein Garant für eine kreative Arbeitsumgebung.
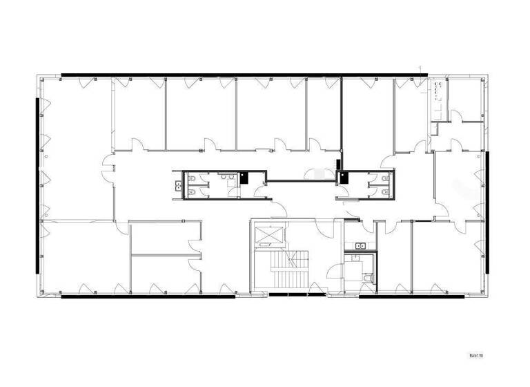
Die Bürofläche verfügt über 7 Büroräume die sowohl von einer Person als auch von zwei Personen genutzt werden können. Darüberhinaus gibt es zwei große Besprechungsräume und einen offenen Empfangsbereich neben der Teeküche und den üblichen Sanitärräumen.

Grundrisse

Grundrisse
1 / 1

Realisiere Dein Projekt

Bausubstanz und Energie

Energieausweis

Endenergiebedarf (Strom)

  • Baujahr2018
  • EnergieträgerElektro, Gas
Immowelt logo

Mietkosten

Nettomiete
4.950 €
Nebenkosten
1.485 €
Heizkosten
in Warmmiete enthalten
Provision für Mieter
Bitte beachte, das Angebot kann bei Vertragsabschluss die Zahlung einer Provision beinhalten. Weitere Informationen erhältst Du vom Anbieter.
Kaution
keine Angabe

Lage

address-icon
Rudi-Conin-Straße 4OssendorfKöln (50829)
1A-Lage Das moderne und stilvolle Büro befindet sich in einem aufstrebenden Gewerbegebiet in Köln, das durch eine hervorragende Infrastruktur und eine verkehrsgünstige Lage besticht. Die Umgebung bietet ideale Bedingungen für Unternehmen, die eine repräsentative Adresse und eine dynamische Arbeitsumgebung suchen.



1. Hervorragende Verkehrsanbindung
- Autobahnanbindung: Die Lage zeichnet sich durch eine schnelle Erreichbarkeit der Autobahnen A1, A3 und A4 aus, wodurch wichtige Wirtschaftszentren im Rheinland und darüber hinaus optimal angebunden sind.
- Öffentlicher Nahverkehr: In unmittelbarer Nähe befinden sich S-Bahn- und Busverbindungen, die eine schnelle Anbindung an die Kölner Innenstadt, den Hauptbahnhof sowie umliegende Stadtteile ermöglichen.
- Flughafen Köln/Bonn: Der internationale Flughafen ist in ca. 15-20 Minuten erreichbar, was das Büro besonders attraktiv für Geschäftsreisende macht.



2. Repräsentative Lage und Geschäftsumfeld
- Modernes Gewerbegebiet**: Die Umgebung ist geprägt von innovativen Unternehmen, Start-ups sowie etablierten Firmen, die von der hervorragenden Infrastruktur profitieren.
- Repräsentative Nachbarschaft: Zahlreiche hochwertige Bürogebäude und Gewerbeimmobilien schaffen ein professionelles Arbeitsumfeld, das sich ideal für Kundentermine und geschäftliche Meetings eignet.
- Flexible Nutzungsmöglichkeiten: Das Büro überzeugt mit hochwertiger Ausstattung, modernem Design und flexiblen Raumlösungen, die sich an verschiedene Branchen anpassen lassen.



3. Vorteile für Mitarbeiter*
- Gastronomie & Einkaufsmöglichkeiten: In der Nähe gibt es eine Vielzahl an Restaurants, Cafés und Bistros, die sich perfekt für Mittagspausen oder Geschäftstermine eignen. Supermärkte und kleinere Geschäfte für den täglichen Bedarf sind ebenfalls schnell erreichbar.
- Parkmöglichkeiten: Zahlreiche Parkplätze und Tiefgaragenstellplätze sorgen für eine stressfreie Anreise mit dem Auto.
- Grüne Erholungsflächen: Trotz der urbanen Lage gibt es in der Umgebung einige Grünflächen, die sich für kleine Pausen oder entspannte Spaziergänge eignen.



Fazit
Dieses moderne Büro bietet Unternehmen eine erstklassige Lage in Köln, die sowohl durch ihre verkehrsgünstige Anbindung als auch durch die repräsentative Umgebung überzeugt. Die Kombination aus hochwertiger Ausstattung, dynamischem Geschäftsumfeld und optimaler Infrastruktur macht diesen Standort besonders attraktiv für Unternehmen, die Wert auf Professionalität, Komfort und eine exzellente Erreichbarkeit legen.

Weitere Services

Lust auf eine Besichtigung?
Eine Frage zur Immobilie?
Nachricht hinzufügen
Mit der Nutzung der oben angegebenen Telefonnummer oder durch Klicken auf „Kontaktieren“ akzeptierst Du die Allgemeinen Nutzungsbedingungen, denen Du jederzeit widersprechen kannst. Weitere Informationen zum Datenschutz

Über den Anbieter

Obenitterstraße 21, 42719 Solingen
partner badge
Partnerschaft
Herr Raoul Brattig
Herr Raoul BrattigDein Kontakt
Online-ID: 2h8gv5w
Referenznummer: AP425
VALOGIS Immobilien AG
title
VALOGIS Immobilien AG
Bewertung: 4,1 von 5 Sternen
Nachricht hinzufügen
Mit der Nutzung der oben angegebenen Telefonnummer oder durch Klicken auf „Kontaktieren“ akzeptierst Du die Allgemeinen Nutzungsbedingungen, denen Du jederzeit widersprechen kannst. Weitere Informationen zum Datenschutz
Wie zufrieden bist du mit dieser Seite (nicht mit der Immobilie selbst)?