flexible Gewerbeflächen in zentraler Lage in Deggendorf
Die groĂzĂźgige Gewerbefläche in einem repräsentativen Wohn- und Geschäftshaus am Stadtplatz in Deggendorf bietet ca. 1.085 m² flexibel gestaltbare Nutzfläche Ăźber zwei Geschosse (UG und EG).
Dank ihrer offenen Grundrisse eignen sich die Flächen fßr vielfältige Nutzungskonzepte von Einzelhandelsflächen bis hin zu Dienstleister-Flächen.
GroĂe Fensterflächen im EG, ein barrierefreier Zugang sowie moderne Gebäudetechnik schaffen ideale Voraussetzungen fĂźr hochwertige Nutzung im Herzen der Deggendorfer Innenstadt.
Merkmale
frei ab 01.10.2026
Lastenaufzug
- moderne Gebäudeausstattung (Heizung, LĂźftung, Sprinkleranlage) - umfassend modernisiert 2020/2021 - Aufzug vorhanden - groĂzĂźgige Belichtungsflächen im EG - barrierefrei Zugang zu allen Flächen
Auf Wartung der haustechnischen Anlagen wie auch auf die Pflege des Gesamtobjekts wird seitens des EigentĂźmers grĂśĂter Wert gelegt.
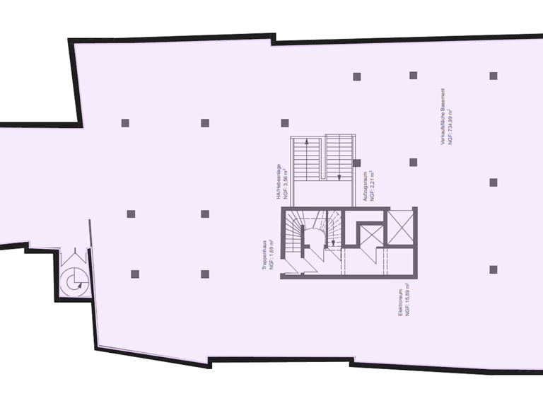
Grundrisse
Grundrisse
1 / 2
Realisiere Dein Projekt
Bausubstanz und Energie
Der Anbieter hat keine Informationen zum Energieverbrauch bereit gestellt.
Baujahr1995
EnergieträgerGas
Mietkosten
Miete auf Anfrage
Provision fĂźr Mieter
Bitte beachte, das Angebot kann bei Vertragsabschluss die Zahlung einer Provision beinhalten. Weitere Informationen erhältst Du vom Anbieter.
Kaution
keine Angabe
Lage
Deggendorf (94469)
Der Anbieter hat die genaue Adresse nicht freigegeben
Das Wohn- und Geschäftshaus befindet sich in zentraler Innenstadtlage inmitten der FuĂgängerzone Deggendorfs. In unmittelbarer Nachbarschaft befinden sich Restaurants sowie namhafte Einzelhändler.
Fläche des Stadtgebietes Deggendorf: 77,20 km² Einwohner (Stand 01.01.2026) 38.783
Deggendorf ist eine groĂe Kreisstadt im niederbayerischen Landkreis Deggendorf. Die Stadt Deggendorf wird aufgrund ihrer Lage im Donautal auch als "Tor zum Bayerischen Wald" bezeichnet.
Die Hochschulstadt hat derzeit Ăźber 9.000 Studenten aus mehr als 120 Nationen.
Wirtschaftsstandort: - breitgefächertes Bildungs- und Ausbildungsangebot - Einzelhandelskaufkraft liegt bei 103,0 (EH-Kaufkraft Index D=100)
Weitere Informationen
Sonstiges
- nächstgelegene Bushaltestelle: weniger als 200 m - Hauptbahnhof Deggendorf: 1,2 km, bzw. 15 Gehminuten - Flughafen Franz-Josef-StrauĂ MĂźnchen: ca. 50 Minuten Fahrzeit - Autobahnkreuz Deggendorf BAB A3 (Frankfurt- NĂźrnberg-Regensburg-Deggendorf-Wien), BAB A92 (MĂźnchen-Deggendorf) und B11 (Bayerisch Eisenstein und CZ) - FuĂgängerzone stadtplatz