
Mario Kramer Immobilien GmbH
Herr Gundlach
004 ···
Nr. anzeigenPreise & Kosten
Provision für Käufer
provisionsfrei
Lage
Im beliebten Bielefelder Westen, unweit (ca. 1,3 km) der Bielefelder Universität erschließt sich das neue Wohngebiet "Fürfeld". Auf ca. 3 ha entstehen neue Mehrfamilienhäuser, Doppelhäuser und Einfamilienhäuser an drei Stichstraßen. Trotz der Nähe zur Innenstadt (ca. 4,7 km) befindet sich die Fläche mitten im Grünen. Der...
Das Haus
Kategorie
Einfamilienhaus
Baujahr
2024
Energie & Heizung
Warum sehe ich diese Anzeige? – Du siehst diese Anzeige basierend auf Ihrer Navigation auf unserer Website und den Suchkriterien, die du verwendet hast.
Energieausweis: für diesen Gebäudetyp nicht notwendig
Weitere Energiedaten
Heizungsart
Fußbodenheizung, Luft-/Wasser-Wärmepumpe
Details
Objektbeschreibung
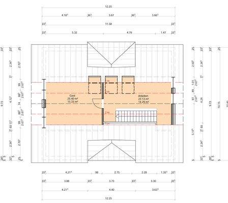
Auf dem sehr beliebten Baugebiet Fürfeld, in Bielefeld-Dornberg, können wir Ihnen dieses projektierte Luxus-Einfamilienhaus anbieten. Das Gebäude ist auf dem Grundstück C11 geplant, welches eine Größe von ca. 611 m² hat. Im Erdgeschoss des Hauses, befindet sich mit dem hellen Wohnzimmer samt offener Küche, der Mittelpunkt des...
Ausstattung
Massive Bauweise, Kunststofffenster 3-fach-Verglasung, Tondachziegel, Fußbodenheizung, Luftwärmepumpe, VHV Gewährleistungsversicherung nebst Fremdüberwachung durch den TÜV / Dekra
Preisinformation
2 Garagenstellplätze
Weitere Informationen
Stichworte
Anzahl der Schlafzimmer: 5, Anzahl der Badezimmer: 2, Anzahl der separaten WCs: 1, Anzahl Balkone: 1, Anzahl Terrassen: 1, Distanz zum Kindergarten: 0.20, Distanz zur Grundschule: 2.00, Distanz zur Realschule: 4.30, Distanz zum Gymnasium: 4.10, Distanz vom Zentrum: 5.60
Anbieter der Immobilie
Online-ID: 2c3pt55
Referenznummer: C11-2023-147
Finde Angebote wie dieses
Hier geht es zu unserem Impressum, den Allgemeinen Geschäftsbedingungen, den Hinweisen zum Datenschutz und nutzungsbasierter Online-Werbung.