

Wohnung zur Miete430 €3 Zimmer • 54,2 m² • 2. Geschoss
430 €
3 Zimmer • 54,2 m² • 2. Geschoss
Böhlen- kleine 3-Raum-DG-Wohnung mit guter Raumaufteilung und Tageslichtbad
Merkmale
- Bezug: sofort
- Dachgeschoss, 2. Geschoss
- Kelleranteil
- Garten
- Badezimmer: Badewanne, Bad mit Fenster
- WG-geeignet
- Bodenbelag: Laminat
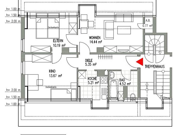
Grundrisse
Grundrisse
1 / 1
Realisiere Dein Projekt
Bausubstanz und Energie
Energieausweis
C
- Baujahr1944
- Zustand der ImmobilieAltbau (bis 1945), renoviert / saniert
- HeizungsartZentralheizung
- EnergieträgerGas
Mietkosten
Warmmiete
610 €
Kaltmiete
7,94 €/m²
430 €
Nebenkosten
180 €
Heizkosten
in Warmmiete enthalten
Kaution
3 Kaltmieten
Lage

Joseph Haydn Straße 13, Böhlen (04564)
Weitere Informationen
Weitere Services
Lust auf eine Besichtigung?
Eine Frage zur Immobilie?
Über den Anbieter
FOCUS Immobilienmakler GmbHMaklerbüro
Rabensteinplatz 1, 04103 Leipzig
Partnerschaft
Frau Leonie VeitDein Kontakt
Online-ID: 2ffsb5k
Referenznummer: 6836

FOCUS Immobilienmakler GmbH
Bewertung: 3,4 von 5 Sternen
Wie zufrieden bist du mit dieser Seite (nicht mit der Immobilie selbst)?

