
Dianium Inmo-Concept S.L.
Frau Cornelia Grün
+49 ···
Nr. anzeigenPreise & Kosten
Provision für Käufer
Bitte beachte, das Angebot kann bei Vertragsabschluss die Zahlung einer Provision beinhalten. Weitere Informationen erhältst Du vom Anbieter.
Lage
Roquebrune-sur-Argens
Malerisch ragt der mittelalterliche Ortskern von Roquebrune auf einem Felsplateau auf.
Braunrote Felswände erheben sich um die drei Ortsteile im Südosten Frankreichs,
die zusammen den Ort Roquebrune-sur-Argens bilden. Die Gemeinde blickt auf tausend Jahre Geschichte zurück.
Auf...
Die Wohnung
Wohnanlage
Details
Objektbeschreibung
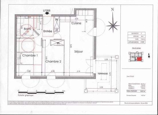
Diese Dreizimmerwohnung ist 55 m² groß und befindet sich in einer ruhigen Lage im obersten Stockwerk mit Blick auf das Meer in einer Residenz in Roquebrune-sur-Argens.
Die Wohnung besteht aus: einer Eingangshalle, einem Wohnzimmer mit offener Einbauküche und Zugang zu einer 11 m² großen Terrasse, 2 Schlafzimmern...
Weitere Informationen
Stichworte
Tiefgarage vorhanden, Anzahl der Schlafzimmer: 2, Anzahl der Badezimmer: 1, Anzahl Terrassen: 1, 1 Etagen
Anbieter der Immobilie
Dianium Inmo-Concept S.L.
Avenida Marina Alta 56, 03750 Pedreguer
Online-ID: 2c55353
Referenznummer: DIC.8982
Finde Angebote wie dieses
Hier geht es zu unserem Impressum, den Allgemeinen Geschäftsbedingungen, den Hinweisen zum Datenschutz und nutzungsbasierter Online-Werbung.