Version: 8.25.1Navigation überspringen
2.375 €
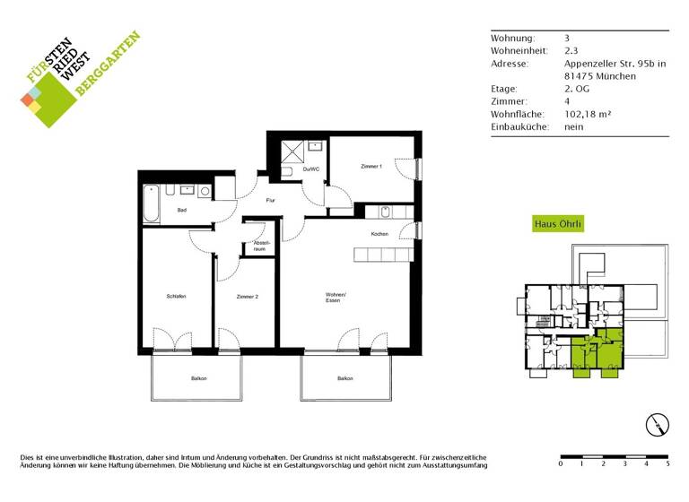
4 Zimmer  •  102,2 m²  •  2. Geschoss
Immowelt logo

Wohnung zur Miete - Erstbezug
2.375 €
4 Zimmer  •  102,2 m²  •  2. Geschoss

Jetzt einziehen: Neubau für Familien zwei Balkone und Mieter Apps

Diese großzügige 4-Zimmer-Wohnung überzeugt durch ihren durchdachten Grundriss, zwei Balkone und eine offenen Wohnküche. Der lichtdurchflutete Wohn- und Essbereich mit angrenzender Küche bildet das Herzstück der Wohnung. Große Fensterfronten sorgen für eine helle, einladende Atmosphäre und führen direkt auf den Süd-Balkon. Perfekt zum Entspannen und Genießen.
Drei gut geschnittene Zimmer bieten vielfältige Nutzungsmöglichkeiten als Schlaf-, Kinder- oder Arbeitszimmer. Das Schlafzimmer verfügt zusätzlich über einen Zugang zum zweiten Balkon, der Sonne und frische Luft bietet. Zwei moderne Bäder, eines mit Badewanne, das andere mit Dusche, sorgen für Komfort im Alltag. Ein praktischer Abstellraum bietet zusätzlichen Stauraum.
Teil eines Projekts
BERGGARTEN
Neubauprojekt
  • alle Details des Projekts erhalten
  • alle verfügbaren Einheiten ansehen
Zum Projekt
öffnet in neuem Tab

Merkmale

  • Bezug: ab sofort
  • 2. Geschoss
  • Personenaufzug
  • Einbauküche
  • Keller
  • Balkon
Auch im Innenbereich setzt der BERGGARTEN auf zeitgemäßen Wohnkomfort und nachhaltige Qualität. Großformatige, bodentiefe Fenster in Holz-Aluminium-Ausführung sorgen für helle, lichtdurchflutete Räume. Parkettböden in Eiche, elegante Fliesen in Bad und Küche sowie eine Fußbodenheizung bieten eine hochwertige Basis für die persönliche Wohnraumgestaltung.

- Massives Hybridtragwerk mit Holztafel-Außenwänden
- Moderne Fassade mit Holz- und Faserzementverkleidung
- Extensive Dachbegrünung und Photovoltaikanlage
- Fußbodenheizung in allen Wohnräumen
- Einbauküche
- Duschverglasung
- Hochwertiges Eichen-Parkett
- Feinsteinzeugfliesen in Küche und Bad
- Bodentiefe Holz-Aluminium-Fenster
- Balkone oder Terrasse
- Fernwärmeversorgung
- IP-fähige Video-Gegensprechanlage
- Fahrradstellplätze und Kellerabteile im UG
- PV-Mieterstrom-Modell
- Kostenfreies Quartiersfitnessstudio
- Digitalisierungskonzept und Mieterapps

Grundrisse

Grundrisse
1 / 1

Virtueller Rundgang

3D tour

Realisiere Dein Projekt

Bausubstanz und Energie

Möchtest du Details zum Energieverbrauch?info_energy_calculation-icon
  • Zustand der ImmobilieNeubau, Erstbezug
Immowelt logo

Mietkosten

Warmmiete
2.685 €
Kaltmiete
23,24 €/m²
2.375 €
Nebenkosten
310 €
Heizkosten
in Warmmiete enthalten
Kaution
7125 €

Lage

address-icon
Appenzeller Straße 95bThalk.Obersendl.-Forsten-Fürstenr.-SollnMünchen (81475)
Im Süden der bayerischen Landeshauptstadt liegt Fürstenried - ein Stadtteil, der sich seit seiner Entstehung als Wohnviertel einen ruhigen, lebensnahen und familienfreundlichen Charakter bewahrt hat. Geprägt von weitläufigen Wohnanlagen, Einfamilienhäusern und viel Grün, vereint Fürstenried gewachsene Strukturen mit hoher Lebensqualität. Wahrzeichen des Viertels ist das barocke Schloss Fürstenried, das nicht ohne Grund als "Klein-Nymphenburg" bezeichnet wird. Familien schätzen die kinderfreundliche Atmosphäre, die gute Bildungsinfrastruktur und die durchdachte Stadtplanung mit viel Platz zum Leben, Spielen und Durchatmen. Der Schlosspark, der Forstenrieder Park und der Wildpark bieten attraktive Naherholungsmöglichkeiten direkt im Viertel - ergänzt durch ein aktives Vereinsleben, das den Gemeinschaftssinn stärkt. Fürstenried ist hervorragend angebunden: Die U-Bahn bringt Pendler schnell ins Zentrum, über die nahe gelegene Autobahn erreicht man zügig das Münchener Umland. Auch die Nahversorgung ist gesichert: Rund um den Schweizer Platz, der mit dem Brunnen "Schweizer Brocken" ein lokales Highlight setzt, finden regelmäßig Wochenmärkte statt. Ein REWE-Markt und ein neuer EDEKA sorgen für den täglichen Bedarf. Daneben prägen Traditionsgasthäuser und Biergärten das Straßenbild - beliebte Treffpunkte für Jung und Alt. Nicht zuletzt macht die Nähe zum Gewerbe- und Industriestandort Obersendling Fürstenried auch für Berufstätige zu einem gefragten Wohnort - mit dem perfekten Mix aus städtischer Nähe und dörflichem Charme.

Im Herzen des nachhaltigen Quartiers FÜRstenried West entsteht mit dem BERGGARTEN ein moderner Neubau, der urbane Lebensqualität, soziale Infrastruktur und nachhaltige Architektur vereint. Der sechsgeschossige Neubau fügt sich harmonisch in das grüne Quartier ein und bietet in den oberen Etagen insgesamt 16 moderne Wohnungen mit durchdachten Grundrissen für unterschiedlichste Lebensentwürfe. Im Erdgeschoss und ersten Obergeschoss befindet sich ein zweigeschossiges Haus für Kinder (HfK) mit Kita, Krippe und Hort - das macht den BERGGARTEN besonders attraktiv für Familien mit Kindern. Die Verbindung aus Wohnraum und Kinderbetreuung direkt im Haus steht sinnbildlich für das integrative, zukunftsfähige Konzept des Quartiers. Besonderes Augenmerk liegt auf der baulichen Qualität: Der BERGGARTEN wird in Hybridbauweise errichtet - mit einer Kombination aus Stahlbetontragwerk und selbsttragender Holztafel-Außenwand. Die markante Fassadengestaltung mit großformatigen Faserzementplatten und fein gerillten Holzlatten verleiht dem Gebäude ein modernes, zugleich warmes Erscheinungsbild. Dachbegrünung, eine Photovoltaikanlage sowie ein klimafreundliches Energiekonzept auf Basis von Fernwärme tragen aktiv zur Nachhaltigkeit bei. Die Gestaltung der Außenanlagen sowie die verkehrsberuhigte Erschließung runden das familienfreundliche Konzept ab. Der BERGGARTEN steht für einen zukunftsorientierten Wohnstil im Süden Münchens - lebendig, gemeinschaftlich und ressourcenschonend.

Weitere Informationen

Sonstiges Bei den Bildern handelt es sich um unverbindliche Visualisierungen und Bilder einer Musterwohnung. Gerne können Sie sich im Zuge einer Besichtigung der Musterwohnung vom BERGGARTEN überzeugen.

WEITERE INFOS UNTER WWW.BERGGARTEN-FUERSTENRIEDWEST.DE

HAFTUNGSAUSSCHLUSS:
Diese Anzeige dient nur der ersten Information und stellt kein Vertragsangebot dar. Die Anzeige begründet keine vertraglichen Ansprüche. Der Inhalt und die Angaben wurden nach bestem Wissen und Gewissen ermittelt. Für Richtigkeit und Vollständigkeit wird keine Haftung übernommen. Die Grundrisse sind nicht zur Maßentnahme geeignet. Bei den Flächenangaben handelt es sich um Planmaße.
Bei den Objektdarstellungen handelt es sich um unverbindliche Visualisierungen (Visualisierungen von ADRIAN BECK PHOTOGRAPHER / h4a Gessert + Randecker). Stichworte Garage vorhanden, Anzahl der Schlafzimmer: 2, Anzahl der Badezimmer: 2, Anzahl Balkone: 2, 5 Etagen

Weitere Services

Lust auf eine Besichtigung?
Eine Frage zur Immobilie?
Mit einer persönlichen Nachricht hast du bessere Chancen auf eine Antwort.
Mit der Nutzung der oben angegebenen Telefonnummer oder durch Klicken auf „Kontaktieren“ akzeptierst Du die Allgemeinen Nutzungsbedingungen, denen Du jederzeit widersprechen kannst. Weitere Informationen zum Datenschutz

Über den Anbieter

Galileistraße 1, 69115 Heidelberg
partner badge
Partnerschaft
Frau Tania ZieglerDein Kontakt
Keine Telefonnummer hinterlegt
Keine Telefonnummer hinterlegt

Weitere Unterlagen

Online-ID: 25WHQPKU7V5D
Referenznummer: fo_03#EpnLD
Müller Merkle Immobilien GmbH
Müller Merkle Immobilien GmbH
Bewertung: 4,2 von 5 Sternen
Mit einer persönlichen Nachricht hast du bessere Chancen auf eine Antwort.
Mit der Nutzung der oben angegebenen Telefonnummer oder durch Klicken auf „Kontaktieren“ akzeptierst Du die Allgemeinen Nutzungsbedingungen, denen Du jederzeit widersprechen kannst. Weitere Informationen zum Datenschutz
Wie zufrieden bist du mit dieser Seite (nicht mit der Immobilie selbst)?