

Kreissparkasse Steinfurt Immobilien-Center
Herr Holger Kreimeyer
054 ···
Nr. anzeigenPreise & Kosten
Provision für Käufer
3,57 % inkl. MwSt.
Lage
Ibbenbüren ist eine Bergbaustadt im nördlichen Teil von Nordrhein-Westfalen.
Mit rund 51.000 Einwohnern ist sie die größte Stadt im Tecklenburger Land sowie die zweitgrößte im Kreis Steinfurt.
Ibbenbüren gliedert sich in neun Stadtteile: Innenstadt, Laggenbeck/Osterledde, Bockraden, Püsselbüren, Alstedde/Schafberg...
Das Renditeobjekt
Kategorie
Mehrfamilienhaus
Frei ab
vermietet
Energie & Heizung
Warum sehe ich diese Anzeige? – Du siehst diese Anzeige basierend auf Ihrer Navigation auf unserer Website und den Suchkriterien, die du verwendet hast.
Energieausweistyp
Bedarfsausweis
Gebäudetyp
Wohngebäude
Baujahr laut Energieausweis
2006
Wesentliche Energieträger
Gas
Gültigkeit
28.11.2023 bis 27.11.2033
Effizienzklasse
D
Endenergiebedarf
100,00 kWh/(m²·a)
Weitere Energiedaten
Energieträger
Gas
Details
Objektbeschreibung
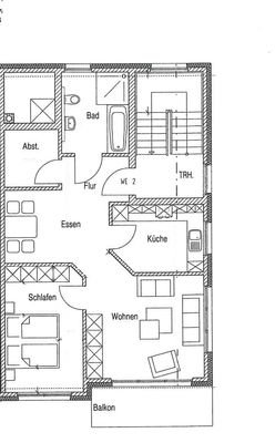
Dieses gepflegte, ca. 2006 erbaute Doppelhaus mit 4 Eigentumswohnungen befindet sich in familienfreundlicher Wohnlage von Ibbenbüren. Die Wohnungen im Erd- und Obergeschoss verfügen über je ca. 66 m² Wohnfläche sowie Balkon oder Terrasse und eigene Heizthermen. 4 PKW-Stellplätze runden dieses Angebot ab. Aktuell sind alle...
Ausstattung
Individuelle Ausstattungsmerkmale:
- Balkon
- Terrasse
Preisinformation
Ist-Mieteinnahmen pro Jahr: 24.636,00 EUR
Weitere Informationen
Sonstiges
VERBRAUCHERINFO
1. Maklerleistung ist der Nachweis der Gelegenheit zum Abschluss eines Vertrages bzw. Vermittlung eines Vertrages über eine Immobilie gegen die Courtagezahlungspflicht des Kunden
2. Unternehmer,Anschrift,Beschwerdeadressat
LBS Immobilien GmbH NordWest, Himmelreichallee 40, 48149 Münster...
Anbieter der Immobilie

Online-ID: 2c6625n
Referenznummer: 11144-I
Finde Angebote wie dieses
Hier geht es zu unserem Impressum, den Allgemeinen Geschäftsbedingungen, den Hinweisen zum Datenschutz und nutzungsbasierter Online-Werbung.