Version: 8.22.6Navigation überspringen
3.545.000 €
5 Zimmer  •  300 m²  •  790 m² Grundstück
Immowelt logo

Einfamilienhaus zum Kauf
3545000 €
11.817 €/m²
5 Zimmer  •  300 m²  •  790 m² Grundstück

Neubau - freistehendes Landhaus/Chalet - tolle Lage im Ortszentrum von Rottach-Egern

Wir bieten Ihnen hier ein freistehendes Neubau - Landhaus/Chalet in sehr guter Lage von Rottach-Egern an.
Auf dem 790 m² großen Grundstück können Sie Ihren Wohntraum von einem freistehenden Landhaus / Chalet mit z.B. 3-4 Schlafzimmern, 4 Bädern, Lift, Wellnessbereich im Untergeschoss sowie modernste Haustechnik und Bauausführung umsetzen.
Die aktuelle Ausführungsplanung sieht eine Wohnfläche von ca. 280 m² Wohnfläche vor sowie 2 oberirdische Garagen.
Im Sommer 2027 könnten Sie ihre neue Immobilie dann bereits beziehen.
Gerne beraten wir Sie persönlich weiterführend zu diesem spannenden Neubau.

Alle Einkaufsmöglichkeiten sind sehr gut und bequem zu Fuß zu erreichen, auch der See und die Seepromenade sind nur einen kurzen Spaziergang entfernt!

Durch die Ausrichtung nach Süd-Westen bietet das Grundstück Ihnen eine optimale Besonnung sowie einen herrlichen Blick auf die umliegenden Berge wie den "Wallberg", "Setzberg" und den "Ringberg" mit dem Blick auf das "Ringbergschloss".

Das Objekt liegt in einem reinen Wohngebiet, nach Norden grenzt ein idyllischer Park mit altem Baumbestand an, der von einer möglichen Bebauung ausgeschlossen ist und insofern dem Grundstück einen besonderen und schönen Mehrwert bietet.

Lassen Sie sich in dieser tollen Lage nieder und verwirklichen Sie sich hier Ihren Traum vom Leben am Tegernsee und in Rottach-Egern!

Ausstattung (in Auszügen):
- Altholzfassaden
- Luftwärmepumpe und Fußbodenheizung
- kontrollierte Wohnraumlüftung
- hochwertige Bodenbeläge wie z.B. Landhausdielen aus Eiche, Naturstein oder großformatige Feinsteinfliesen
- Lift
- Wellnessbereich im UG

- Sonderwunsch: Außenpool

Merkmale

  • Bezug: sofort
  • 790 m² Grundstück
  • Personenaufzug
  • Keller
  • 2 Stellplätze
  • Gäste-WC
  • Balkon
  • Garten

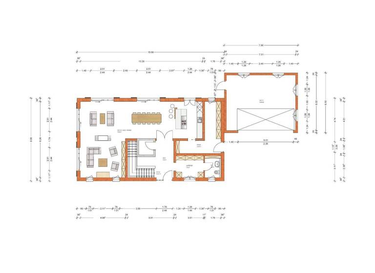
Grundrisse

Grundrisse
1 / 3

Realisiere Dein Projekt

Bausubstanz und Energie

Der Anbieter hat keine Informationen zum Energieverbrauch bereit gestellt.
  • Baujahr2026
Immowelt logo

Preisdetails

Kaufpreis
3545000 €
11.816,67 €/m²
Provision für Käufer
3.57 % inkl. gesetzl. MwSt.
Der Makler-Vertrag mit uns und/oder unserem Beauftragten kommt durch die Bestätigung der Inanspruchnahme unserer Maklertätigkeit in Textform zustande, wie z.B. Weitere Informationen siehe Provisionshinweis.
Geschätzte Gesamtkosten
3.866.531 €1
Kaufpreis
3.545.000 €
Notarkosten (1,5%)
53.175 €
Grunderwerbsteuer (3,5%)
124.075 €
Provision für Käufer (3,57%)
126.556 €
Grundbucheintrag (0,5%)
17.725 €
1Der angezeigte Wert ist eine automatisch berechnete Schätzung von immowelt.
2Bei den Angaben handelt es sich um ortsübliche Werte. Individuelle Kosten können abweichen.

Lage

address-icon
WeißachRottach-Egern (83700)
Der Anbieter hat die genaue Adresse nicht freigegeben
Die Liegenschaft befindet sich in bevorzugter Wohnlage im Ortskern von Rottach-Egern im Ortsteil "Staudach".

Es handelt es sich um eine ruhige, zentrale Wohngegend mit ausschließlich Wohngebäuden. Das langsam über die Jahre entstandene nachbarschaftliche Umfeld ist ein gesunder Mix aus traditionellen und gepflegten Einfamilien- und Mehrfamilienhäusern.

Von Ihrem neuen Zuhause aus können Sie Spaziergänge zum See oder zum Ortskern direkt vor der Haustüre beginnen.

Sie können vom Objekt aus bequem erreichen:

* Ortszentrum Weissach: ca. 300 Meter - ca. 3 Gehminuten - ca. 1 Fahrradminute
* Ortszentrum Rottach-Egern: ca. 700 Meter - ca. 9 Gehminuten - ca. 2 Fahrradminuten
* See / Seepromenade / Seestraße: ca. 1.000 Meter - ca. 15 Gehminuten - ca. 3 Fahrradminuten
* Spazierweg "Weissachdamm": ca. 200 Meter - ca. 2 Gehminuten - ca. 1 Fahrradminute
* See / Badestrand "Popperwiese" über den "Weissachdamm": ca. 1.700 Meter - ca. 22 Gehminuten - ca. 5 Fahrradminuten

Wir sind von Herzen überzeugt, dass Sie sich hier sehr wohlfühlen werden!

Vom Tegernseer Tal geht eine große Faszination aus:

Traditionelles und Modernes, eine hervorragende Infrastruktur etc. vereinen sich zu einem der schönsten Orte in unserem Lande.

Mit dem Tegernsee direkt vor der Haustür, dem reichhaltigen Kultur-, Sport- und Freizeitangebot ist das Tegernseer Tal eine sehr begehrte Adresse.

Ob ursprüngliche Läden oder kleine Boutiquen, das Herzogliche Bräustüberl, charmante Bistros oder feine Restaurants, moderne Wellnesseinrichtungen etc.: Es bleiben - wenn überhaupt - nur wenig Wünsche offen.

Auch die medizinische Versorgung genügt nahezu allen Ansprüchen.

Für Kultur und Einkaufen sind Sie schnell in München und Salzburg.

Die Verkehrsanbindungen zu den internationalen Flughäfen München, Salzburg, Innsbruck, nach Österreich, Italien, in die Schweiz etc. ist ebenfalls sehr gut.

- Ein Traum zum Wohnen und Leben -

Weitere Informationen

Provisionshinweis 3.57 % inkl. gesetzl. MwSt.
Der Makler-Vertrag mit uns und/oder unserem Beauftragten kommt durch die Bestätigung der Inanspruchnahme unserer Maklertätigkeit in Textform zustande, wie z.B. insbesondere die Unterschrift des Suchkundenvertrages und/oder des Objekt Exposés. Die Höhe der Courtage richtet sich nach den ab dem 23.12.2020 in Kraft getretenen gesetzlichen Regelungen zur Teilung der Maklercourtage. Hiernach wird die Courtage regelmäßig für beide Parteien (Eigentümer und Käufer) in Höhe von jeweils 3 % zuzüglich Umsatzsteuer in der jeweils geltenden Höhe, derzeit also insgesamt 3,57% des Kaufpreises einschließlich Umsatzsteuer bei notariellem Vertragsabschluss verdient und fällig. Die Höhe der Bruttocourtage unterliegt einer Anpassung bei Steuersatzänderung. Grunderwerbssteuer, Notar- und Gerichtskosten trägt der Käufer. Energiepass Energieausweis wird bei Besichtigung vorgelegt. Stichworte Garage vorhanden, Nutzfläche: 150,00 m², Anzahl der Schlafzimmer: 4, Anzahl der Badezimmer: 4, Anzahl Balkone: 1, Anzahl Terrassen: 1, Bundesland: Bayern Sonstiges/Wohnen: seniorengerechtes Wohnen

Weitere Services

Lust auf eine Besichtigung?
Eine Frage zur Immobilie?
Nachricht hinzufügen
Mit der Nutzung der oben angegebenen Telefonnummer oder durch Klicken auf „Kontaktieren“ akzeptierst Du die Allgemeinen Nutzungsbedingungen, denen Du jederzeit widersprechen kannst. Weitere Informationen zum Datenschutz

Über den Anbieter

Seestr. 14, 83700 Rottach-Egern
Online-ID: 2nf7m5k
Referenznummer: I-048846-W-048846
Engel & Völkers Am Tegernsee - Tegernseer Tal Immobilien GmbH
Engel & Völkers Am Tegernsee - Tegernseer Tal Immobilien GmbH
Nachricht hinzufügen
Mit der Nutzung der oben angegebenen Telefonnummer oder durch Klicken auf „Kontaktieren“ akzeptierst Du die Allgemeinen Nutzungsbedingungen, denen Du jederzeit widersprechen kannst. Weitere Informationen zum Datenschutz
Wie zufrieden bist du mit dieser Seite (nicht mit der Immobilie selbst)?