HsM Haus Management GmbH

Herr Constantin Fabry

Gut geschnittene 2-Zi Wohnung

€ 480
Kaltmiete zzgl. NK
60 m²
Wohnfläche ca.
2
Zimmer

Der Anbieter dieses Objekts hat gegenüber der AVIV Germany GmbH als Betreiber dieses Online-Marktplatzes erklärt, nicht als Unternehmer im Sinne des § 1 KSchG zu handeln. Die im Verbraucherschutzrecht der Union verankerten Verbraucherrechte (insbesondere Informationspflichten und Rücktritts- bzw. Widerrufsrechte) finden auf den Vertrag zwischen dem Anbieter des Objekts und Ihnen (dem Interessenten) keine Anwendung.

Gewerblicher Anbieter

Der Anbieter dieses Objekts hat gegenüber der AVIV Germany GmbH als Betreiber dieses Online-Marktplatzes erklärt, als Unternehmer im Sinne des § 1 KSchG zu handeln.

AdresseStraße nicht freigegeben
45665 Recklinghausen 
(Ost)
Auf Karte ansehen

Preise & Kosten

Kaltmiete € 480 Nebenkosten € 110 Heizkosten € 110 Warmmiete € 700 Preis/m² € 8

Kaution

1000

Lage

Das Haus ist ca. 1,8 km von der Innenstadt entfernt. In unmittelbarer Nähe gibt es gute Einkaufsmöglichkeiten. Der öffentliche Nahverkehr hält in unmittelbarer Nähe. In wenigen Minuten ist man mit dem Auto auf den umliegenden Autobahnen.

Die Wohnung

Wohnungslage

2. Geschoss

Bezug

01.09.25

  • Bad mit Dusche
  • Einbauküche
  • Böden: Laminat

Wohnanlage

  • Baujahr: 1930

Energie & Heizung

A+
A
B
C
D
E
F
G
H
0 25 50 75 100 125 150 175 200 225 250 +

Energieausweistyp

Verbrauchsausweis

Gebäudetyp

Wohngebäude

Baujahr laut Energieausweis

1930

Wesentliche Energieträger

Gas

Gültigkeit

seit 18.11.2014

Effizienzklasse

D

Endenergieverbrauch

119,40 kWh/(m²·a) - Warmwasser enthalten

Weitere Energiedaten

Energieträger

Gas

Heizungsart

Zentralheizung

Details

Objektbeschreibung

Objektbeschreibung
Gepflegtes Wohnhaus mit 7 WE. Das Haus wurde 1930 erbaut und anschließend immer wieder modernisiert. Zuletzt wurde in letzten Jahr eine moderne Gas-Zentralheizung mit Warmwasseraufbereitung eingebaut.

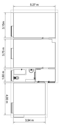
Raumaufteilung
2 Schöne abgeschlossene Wohnräume, ein Bad mit Tageslicht und Badewanne. Es...

Mehr anzeigen

Weitere Informationen

Besichtigungstermine
Bitte rufen Sie uns nicht an. Schreiben Sie uns über die Antwortleiste und beantworten folgende Fragen:
Mit wie vielen Personen wollen Sie einziehen?
Was ist der Grund für den Wohnungswechsel?
Wie wird die Miete bestritten?

Stichworte
Sonstiges: frei werdend

Anbieter der Immobilie

PartnerDiamond Partner

HsM Haus Management GmbH

im Durchschnitt  4,10  Sterne
(bei 7 Bewertungen)

Kellerstr. 7, 45657 Recklinghausen

user

Herr Constantin Fabry

Dein Ansprechpartner

Anbieter-Website Anbieter-Impressum

Online-ID: 2c7jm5h

Finde Angebote wie dieses

imageimageimage

Hier geht es zu unserem Impressum, den Allgemeinen Geschäftsbedingungen, den Hinweisen zum Datenschutz und nutzungsbasierter Online-Werbung.