

CUBION Immobilien AG
Herr Stewart Darman
+49 ···
Nr. anzeigenPreise & Kosten
Provision für Mieter
provisionsfrei
Warum sehe ich diese Anzeige? – Du siehst diese Anzeige basierend auf Ihrer Navigation auf unserer Website und den Suchkriterien, die du verwendet hast.
Lage
Straßenbahnhaltestelle: 2 Gehminuten
Bushaltestelle: 4 Gehminuten
Hauptbahnhof Mülheim: 4 Fahrminuten
Autobahn: 5 Fahrminuten
Flughafen Düsseldorf: 25 Fahrminuten
Büro-/Praxisfläche
Kategorie
Bürofläche
Baujahr
1975
Bezug
kurzfristig nach Vereinbarung
Energie & Heizung
Warum sehe ich diese Anzeige? – Du siehst diese Anzeige basierend auf Ihrer Navigation auf unserer Website und den Suchkriterien, die du verwendet hast.
Weitere Energiedaten
Heizungsart
Zentralheizung
Details
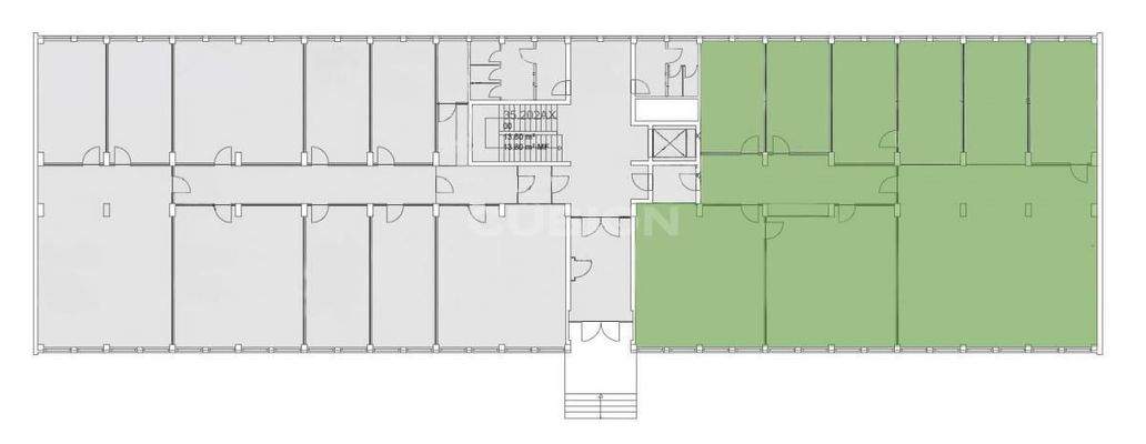
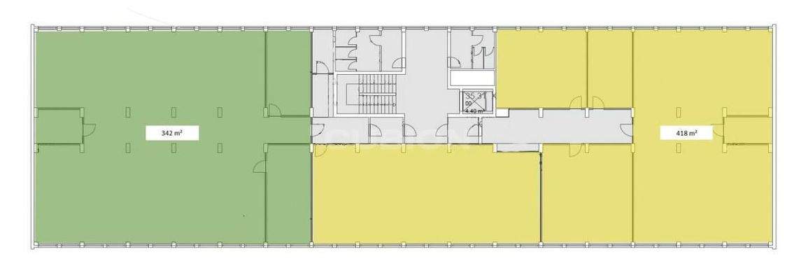
Objektbeschreibung
Die angebotenen Flächen befinden sich in einem neuwertigen und modernen Bürogebäude im Geneba-Park, in Mülheim-Mellinghofen. Das Gebäude besticht besonders durch ein einladendes Foyer, bodentiefe Fensterfronten, lichtdurchflutete Bürorräume und eine attraktive Grünanlage.
Folgende Flächen stehen derzeit zur...
Ausstattung
Bodenbelag: Teppichboden
EDV-Verkabelung: CAT 7
Kabelführung: Bodentanks
Kühlung: Kühl- und Heizdecken
Sonnenschutz: Raffstoren außen (elektrisch)
Küche: Anschlüsse vorinstalliert
Beleuchtung: Standleuchten
Sonstiges:
- Kantine/Restaurant
- Akustikdecke, - Einbauschränke
Aufzug...
Weitere Informationen
Sonstiges
GEG 2020: Ein Energieausweis liegt zur Zeit nicht vor.
Dieses Angebot ist provisionspflichtig für den Mieter.
Alle Informationen in diesem Exposé beruhen auf Angaben, die wir vom Vermieter erhalten haben. Für Richtigkeit und Vollständigkeit übernehmen wir keine Gewähr. Zwischenvermietung vorbehalten...
Anbieter der Immobilie

CUBION Immobilien AG
Akazienallee 65, 45478 Mülheim

Online-ID: 2c8gb5n
Referenznummer: 1687/G5/E2/Eh1
Finde Angebote wie dieses
Hier geht es zu unserem Impressum, den Allgemeinen Geschäftsbedingungen, den Hinweisen zum Datenschutz und nutzungsbasierter Online-Werbung.