
Garda Haus Srl
Herr Daniel Harris
003 ···
Nr. anzeigenPreise & Kosten
Provision für Käufer
ja maklerprovision im Preis nicht inbegriffen
Das Haus
Kategorie
Einfamilienhaus
Baujahr
1995
Energie & Heizung
Warum sehe ich diese Anzeige? – Du siehst diese Anzeige basierend auf Ihrer Navigation auf unserer Website und den Suchkriterien, die du verwendet hast.
Weitere Energiedaten
Energieträger
Öl
Heizungsart
Etagenheizung, offener Kamin
Details
Objektbeschreibung
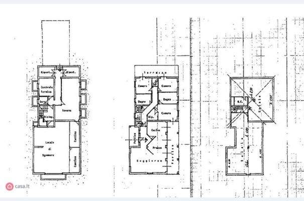
Die Villa liegt nur wenige Minuten vom Zentrum von Menaggio entfernt und erstreckt sich über eine Ebene sowie einen Keller und einen Dachboden.
Wir finden einen halbflachen umliegenden Park von ca. 2.000 m2 vor, in dem die Möglichkeit besteht, ein Schwimmbad zu bauen.
Die Villa ist wie folgt aufgebaut: Im...
Weitere Informationen
Sonstiges
Vi accompagneremo personalmente agli immobili su appuntamento e saremo al vostro fianco come partner forte e competente durante l'intero processo di acquisto della vostra proprietà. Con noi non scendete a compromessi e non lasciate nulla al caso. Per noi servizio completo non è solo una parola, ma una filosofia...
Anbieter der Immobilie
Garda Haus Srl
Via Meucci 77, 25080 PADENGHE SUL GARDA
Online-ID: 2c9sw5q
Referenznummer: CO00265
Finde Angebote wie dieses
Hier geht es zu unserem Impressum, den Allgemeinen Geschäftsbedingungen, den Hinweisen zum Datenschutz und nutzungsbasierter Online-Werbung.