Version: 8.22.6Navigation überspringen
J&P Immobilienmakler GmbH
12,50 €
293 m² Bürofläche

Bürofläche zur Miete
12,50 €
/m²
293 m² Bürofläche

Großzügiges Open-Space Büro mit maximaler Sichtbarkeit direkt an der Nußdorfer Straße zu mieten

Flächen- und Kostenübersicht
Geschoß: EG
Top: 2/GL
Nutzfläche: ca. 293 m²
Nettomiete/m²: € 12,50
BK netto/m² netto: € 1,80

Alle Preisangaben verstehen sich zzgl. 20 % USt.

Allgemeine Objektbeschreibung
An einem gut frequentierten Standort des 9. Wiener Gemeindebezirks, direkt an der Nußdorfer Straße, bietet sich Ihnen eine seltene Gelegenheit: Eine weitläufige Bürofläche mit ca. 293 m², die nur darauf wartet, durch Ihr individuelles Konzept zum Leben erweckt zu werden.
Das Objekt bietet einen großzügigen Open-Space Bereich plus vielseitig nutzbare Nebenräume auf insgesamt ca. 293 m².
Dieses markante Eck-Büro im Erdgeschoss besticht durch seine Großzügigkeit und die hervorragende Belichtung. Der Hauptzugang ist an der Nußdorferstraße gelegen.

Die Fläche überzeugt durch eine funktionale Aufteilung:
Ein Open Space Bereich, der durch die breite Fensterfront optimal mit Tageslicht versorgt wird.
Ein separates Büo bietet Raum für Diskretion, eine komplett ausgestattete Küche, zwei Abstellräume und ein Sanitärbereich sind ebenso vorhanden.

Dank zweier separater Eingänge lassen sich Lieferabläufe und Kundenverkehr professionell trennen.

Prominente Ecklage: Unübersehbar positioniert an der Ecke Nußdorfer Straße / Himmelpfortstiege.

Ein riesiges Glasportal erstreckt sich über die gesamte Bürofläche.
Die Räumlichkeiten präsentieren sich in einem gepflegten, frisch ausgemalten Zustand und bieten eine neutrale Basis für Ihre Einbauten.

Mietvertragdauer: 10 Jahre
Kündigungsverzicht: 3 Jahre
Kaution: 6 BMM
Provision: 3 BMM
Verfügbar. 1.6.2026

Energieausweis
HWB 127,2 kWh/m²a

Lage
Der Standort punktet durch eine exzellente Infrastruktur und ein gewachsenes, urbanes Viertel:

Top-Verkehrsanbindung: Nur wenige Schritte zur U6-Station Nußdorfer Straße sowie zu den Linien der Alserbachstraße.

Starke Nachbarschaft: Die historische Markthalle, renommierte Gastronomiebetriebe und vielfältige Handelsgeschäfte sorgen für ein beständiges, kaufkräftiges Publikum.

Hohe Frequenz: Profitieren Sie von der Dynamik einer der wichtigsten Geschäftsstraßen des Bezirks.

Ihr Vorteil: Gestalten Sie diese großzügige Fläche ganz nach Ihren Bedürfnissen. Die solide Grundsubstanz und die unschlagbare Sichtbarkeit bieten das perfekte Fundament für Ihren geschäftlichen Erfolg.


Öffentliche Verkehrsanbindung
U-Bahn U6 Nussdorfer Straße
Straßenbahnen 37,38

Ansprechpartner:
Frau Kathrin Fercher
Tel.: +43 (1) 596 60 20 0

Mehr Objekte finden Sie unter:
www.jpi.at

Wir haben was für Sie

Wir weisen darauf hin, dass wir mit dem Abgeber in ständiger Geschäftsbeziehung stehen und schon aus diesem Grund ein wirtschaftliches Naheverhältnis vorliegt.

Merkmale

  • frei ab 01.06.2026

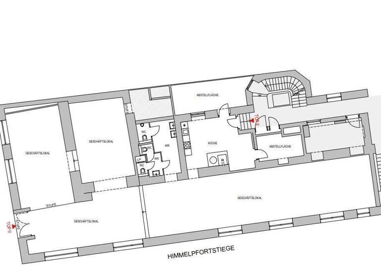
Grundrisse

Grundrisse
1 / 1

Realisiere Dein Projekt

Bausubstanz und Energie

Heizwärmebedarf (HWB)

D

Gesamtenergieeffizienz (fGEE)

C
  • Baujahr1912
  • Zustand der ImmobilieAltbau (bis 1945)
  • HeizungsartEtagenheizung
  • EnergieträgerGas
MediumRectangleTop

Mietkosten

Gesamtmiete
5.027,88 €
Nettokaltmiete
12,50 €/m²
3.662,50 €
Betriebskosten
632,88 €
Umsatzsteuer
837,98 €
Provision für Mieter
3 BMM
Kaution
30.167,28 6 MM
Weitere Preisinformationen
Nettokaltmiete: 3.662,50 EUR

Lage

address-icon
Himmelpfortstiege 1Wien (1090)

Weitere Services

Lust auf eine Besichtigung?
Eine Frage zur Immobilie?
Nachricht hinzufügen
Mit der Nutzung der oben angegebenen Telefonnummer oder durch Klicken auf „Kontaktieren“ akzeptierst Du die Allgemeinen Nutzungsbedingungen, denen Du jederzeit widersprechen kannst. Weitere Informationen zum Datenschutz

Über den Anbieter

Lehargasse 7, 1060 WIEN
partner badge
10 Jahre Partnerschaft
Frau Kathrin Fercher
Frau Kathrin FercherDein Kontakt
Online-ID: 2n3345k
Referenznummer: 101/18626
J&P Immobilienmakler GmbH
title
J&P Immobilienmakler GmbH
Nachricht hinzufügen
Mit der Nutzung der oben angegebenen Telefonnummer oder durch Klicken auf „Kontaktieren“ akzeptierst Du die Allgemeinen Nutzungsbedingungen, denen Du jederzeit widersprechen kannst. Weitere Informationen zum Datenschutz
MediumRectangleTop
MediumRectangleBottom
MediumRectangleTop
Wie zufrieden bist du mit dieser Seite (nicht mit der Immobilie selbst)?