

Wohnung zum Kauf - Erstbezug486500 €4.088 €/m²4,5 Zimmer • 119 m²
486500 €
4.088 €/m²
4,5 Zimmer • 119 m²
5,5 Zimmer Familienwohnung
Merkmale
- Personenaufzug
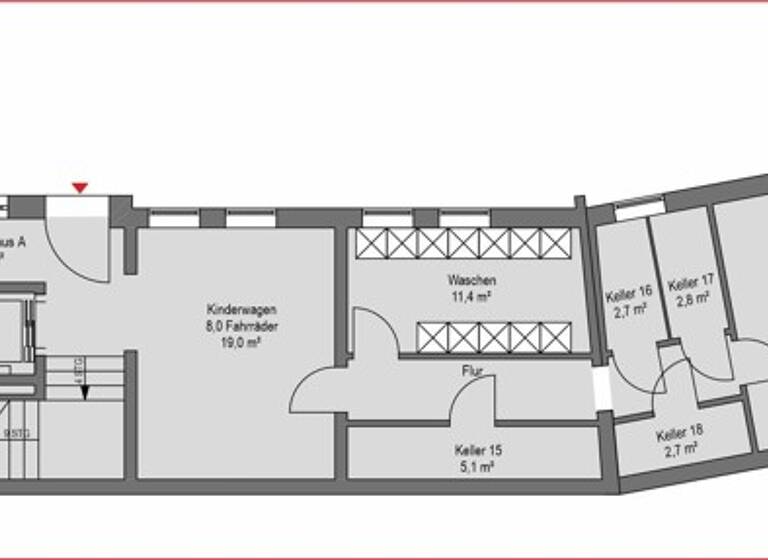
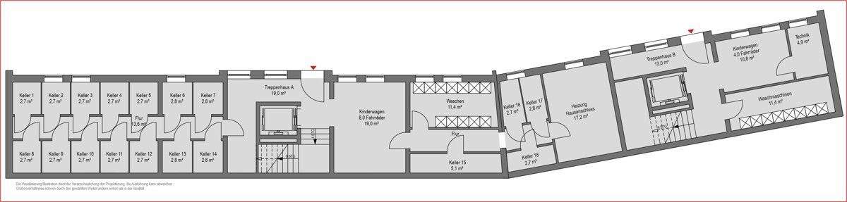
- Kelleranteil
- Tiefgarage
- Balkon
- Terrasse
Grundrisse
Grundrisse
1 / 2
Realisiere Dein Projekt
Bausubstanz und Energie
Der Anbieter hat keine Informationen zum Energieverbrauch bereit gestellt.
- Baujahr2024
- Zustand der ImmobilieErstbezug
- HeizungsartFuĂźbodenheizung
- EnergieträgerLuft-/Wasser-Wärmepumpe
Preisdetails
Kaufpreis
486500 €
4.088,24 €/m²
Preis pro Stellplatz
22500 €
Provision für Käufer
Bitte beachte, das Angebot kann bei Vertragsabschluss die Zahlung einer Provision beinhalten. Weitere Informationen erhältst Du vom Anbieter.
Weitere Preisinformationen
1 Tiefgaragenstellplatz, Kaufpreis: 22.500,00 EUR
Geschätzte Gesamtkosten
545.222 €1
Kaufpreis
486.500 €
Kaufnebenkosten
58.722 €
2Notarkosten (1,5%)
7.298 €
Grunderwerbsteuer (6,5%)
31.623 €
Provision für Käufer (3,57%)
17.368 €
Grundbucheintrag (0,5%)
2.433 €
1Der angezeigte Wert ist eine automatisch berechnete Schätzung von immowelt.
2Bei den Angaben handelt es sich um ortsübliche Werte. Individuelle Kosten können abweichen.
Lage

Nord, Remscheid / Hasten (42857)
Der Anbieter hat die genaue Adresse nicht freigegeben
Weitere Informationen
Weitere Services
Lust auf eine Besichtigung?
Eine Frage zur Immobilie?
Ăśber den Anbieter
Online-ID: 2j9rz5x
Referenznummer: GSI_1820-000_1314

Botte Immobilien
Wie zufrieden bist du mit dieser Seite (nicht mit der Immobilie selbst)?

