Nordwalde || 408 m² Neubau-Halle mit Büro-/Sozialraum || Lage an der B54 || Ebenerdige Anlieferung
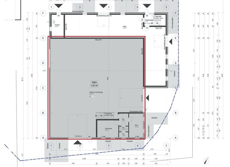
Diese moderne Neubau-Halle mit Büroeinheit wartet in der Feldbauerschaft in Nordwalde nahe der B54 auf Sie! Die Immobilie bietet eine Hallenfläche von ca. 367 m² mit einer Büro-/Sozialfläche von ca. 42 m².
Die Halle überzeugt durch ihre (...)
Die vollständige Objektbeschreibung, Ausstattungsliste sowie Grundrisse und alle Bilder zu dieser Immobilie finden Sie unter folgendem Link auf unserer Homepage:
. Neubau . repräsentatives Erscheinungsbild . 366,36 m² Halle + 41,61 m² Büro-/Sozialfläche . zusätzliche Lagerfläche 47,72 m² . Hallenhöhe 5,60 - 7,81 Meter . 2 ebenerdige Sektionaltore . 24/7 Betrieb möglich . Halle: glatt geschliffener(...)
Die vollständige Ausstattungsbeschreibung, Objektbeschreibung sowie Grundrisse und alle Bilder zu dieser Immobilie finden Sie unter folgendem Link auf unserer Homepage:
Der Anbieter hat keine Informationen zum Energieverbrauch bereit gestellt.
Baujahr2025
Zustand der ImmobilieErstbezug
Mietkosten
Miete auf Anfrage
Heizkosten
in Warmmiete enthalten
Provision für Mieter
Bitte beachte, das Angebot kann bei Vertragsabschluss die Zahlung einer Provision beinhalten. Weitere Informationen erhältst Du vom Anbieter.
Kaution
keine Angabe
Lage
Nordwalde (48356)
Der Anbieter hat die genaue Adresse nicht freigegeben
Die Immobilie befindet sich in der Feldbauerschaft in Nordwalde, in einem verkehrsgünstig gelegenen Gewerbegebiet. Von hier aus besteht über die Nähe zur B54 eine gute Anbindung an die umliegenden Städte wie Münster, Greven und Steinfurt sowie zur Autobahn A1 und A31.
Die Lage bietet eine Kombination aus Ruhe und Effizienz: ausreichend Platz für Logistik, Produktion oder Lagerung, verbunden mit einer schnellen Erreichbarkeit für Mitarbeiter, Kunden und Geschäftspartner.
Weitere Informationen
Sonstiges
MIETPREIS: Der Mietpreis kann sich abhängig von Ausstattung und Laufzeit des abzuschließenden Mietvertrages ändern und versteht sich als Basispreis zzgl. Nebenkosten und Umsatzsteuer.
PROVISIONSFREI FÜR DEN MIETER: Die wirtschaftlich notwendige Vergütung erhalten wir vom Objektanbieter.
ENERGIEAUSWEIS: Für dieses Objekt liegt uns noch kein Energieausweis vor. . . HINWEIS: Sie finden es schwer, die geeignete Fläche für Ihre Anforderungen in Onlineportalen zu finden? Wir vereinfachen Ihre Immobiliensuche mittels zielorientierter und strukturierter Arbeitsprozesse, damit Sie sich ganz auf Ihr Kerngeschäft fokussieren können. Wir liefern Ihnen zeitnah ein vorselektiertes Angebotsportfolio mit Objekten, die Ihren Bedürfnissen gerecht werden. Selbstverständliche ist die Anmietung für Sie als Mieter provisionsfrei. Falls Sie noch ein gültiges, langfristiges oder ungekündigtes Mietverhältnis für Ihren derzeitigen Standort haben, können wir Ihnen und Ihrem Vermieter eine optimale Anschlussvermietung im Rahmen einer Nachmietersuche anbieten. Rufen Sie uns einfach unverbindlich unter 0251-203187-44 an. BUSCHE GEWERBEEXPERTEN GmbH ist ein auf Mieterberatung spezialisiertes Dienstleistungsunternehmen.
Stichworte
Stellplatz vorhanden, Lagerfläche: 366,36 m², Gesamtfläche: 407,97 m², Bürofläche: 41,61 m²