Version: 8.24.0Navigation ĂĽberspringen
1.290.000 €
4 Zimmer  â€˘  125 m²  â€˘  240 m² GrundstĂĽck
Immowelt logo

Mehrfamilienhaus zum Kauf • provisionsfrei
1290000 €
10.320 €/m²
4 Zimmer  â€˘  125 m²  â€˘  240 m² GrundstĂĽck

Neubau- DHH*, in Top Lage Mü. - Waldperlach - Märchenviertel/ H- Nr. 5

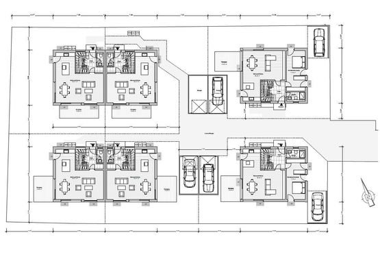
Neubau von vier Doppelhaushälften und zwei Einfamilienhäusern inkl. Garage od. Carport, in schöner, ruhiger Wohnlage im beliebten Münchner Märchenviertel

Angaben oben fĂĽr DHH- Haus- Nr. 5

125 qm Wohnfläche + 42 qm Nutzfläche

Grund: gesamt ca. 1734 qm

AuĂźenmaĂźe: DHHs: 8 m x 8 m / KG + EG + OG
EFHs: 10 m x 8 m / KG + EG + OG

Baugenehmigung: liegt vor

Baubeginn in Kürze. Fertigstellung Mitte 2027. Ab dem Baubeginn beträgt die Bauzeit bis zur Bezugsfertigkeit ca. 14 Monate.

Planung: Die Gestaltung der Grundrisse ist noch beinflussbar und kann nach Ihren Wünsche geändert und umgeplant werden. Der Architekt berät Sie dazu gerne bei einem persönlichen Besprechungstermin im Büro.

Merkmale

  • Bezug: 2027
  • 1 Geschoss
  • 240 m² GrundstĂĽck
  • Garage
  • Gäste-WC
  • Garten
  • Terrasse

Realisiere Dein Projekt

Bausubstanz und Energie

Der Anbieter hat keine Informationen zum Energieverbrauch bereit gestellt.
  • Baujahr2026
  • Zustand der ImmobilieNeubau
  • HeizungsartFuĂźbodenheizung
  • EnergieträgerLuft-/Wasser-Wärmepumpe
Immowelt logo

Preisdetails

Kaufpreis
1290000 €
10.320 €/m²
Provision für Käufer
provisionsfrei; provionsfrei
Geschätzte Gesamtkosten
1.360.950 €1
Kaufpreis
1.290.000 €
Notarkosten (1,5%)
19.350 €
Grunderwerbsteuer (3,5%)
45.150 €
Grundbucheintrag (0,5%)
6.450 €
1Der angezeigte Wert ist eine automatisch berechnete Schätzung von immowelt.
2Bei den Angaben handelt es sich um ortsübliche Werte. Individuelle Kosten können abweichen.

Lage

address-icon
Eulenspiegelstraße 98, Ramersdorf-Perlach, München (81739)
Waldperlach liegt im südöstlichen Teil Münchens und gehört zu einer der besten und ruhigsten Wohnlangen Münchens. Viel grüne Umgebung, Straßennamen aus alten Märchen und eine gute Anbindung und Infrastruktur zeichnen das beliebte Viertel aus. Eingerahmt in Gärten finden sich hier vorwiegend Einfamilien-, Doppel- und kleine Mehrfamilienhäuser in Anliegerstraßen, die den Gartenstadtcharakter prägen. Alle Geschäfte des täglichen Bedarfs, Ärzte und Apotheken, Kindergarten und Schulen liegen in Geh- oder Radl-Entfernung. Die S-Bahnstation Neubiberg und den ÖNPV erreicht man zu Fuß in ca. 8 Minuten und die Innenstadt in ca. 20 Minuten Fahrzeit. Für Freizeit und Erholung bieten die umliegenden Parks und Wäldchen mit Sport- und Spielstätten, und der nahegelegene Waldtruderinger Forst, viel Abwechslung und laden zu Spaziergängen, Wanderungen und Radtouren ein. Die Seen im südlichen Umland und die Berge sind nicht weit entfernt. Die Auffahrt zur A8 oder A99 ist in ca. 8-10 Fahrminuten erreichbar und verbindet Sie mit dem Fernverkehr.

Weitere Informationen

Stichworte Zustand: Erstbezug, neuwertig Sonstiges: Keller als Wohnraum nutzbar

Weitere Services

Lust auf eine Besichtigung?
Eine Frage zur Immobilie?
Nachricht hinzufĂĽgen
Mit der Nutzung der oben angegebenen Telefonnummer oder durch Klicken auf „Kontaktieren“ akzeptierst Du die Allgemeinen Nutzungsbedingungen, denen Du jederzeit widersprechen kannst. Weitere Informationen zum Datenschutz

Ăśber den Anbieter

H. BrunmayrMaklerbĂĽro
Robert-Koch-StraĂźe 22 D, 82031 GrĂĽnwald
partner badge
Partnerschaft
Frau Heidemarie BrunmayrDein Kontakt
Online-ID: 2cge25t
Referenznummer: WP- EU- DH- H5
H. Brunmayr
Bewertung: 4 von 5 Sternen
Nachricht hinzufĂĽgen
Mit der Nutzung der oben angegebenen Telefonnummer oder durch Klicken auf „Kontaktieren“ akzeptierst Du die Allgemeinen Nutzungsbedingungen, denen Du jederzeit widersprechen kannst. Weitere Informationen zum Datenschutz
Wie zufrieden bist du mit dieser Seite (nicht mit der Immobilie selbst)?