
ÖRAG Immobilien Vermittlung GmbH
Herr Rainer Kutschera
004 ···
Nr. anzeigenPreise & Kosten
inkl. Betriebskosten
Kaution
14.000,00
Provision für Mieter
3 BMM zzgl. USt. inkl. MwSt.
Warum sehe ich diese Anzeige? – Du siehst diese Anzeige basierend auf Ihrer Navigation auf unserer Website und den Suchkriterien, die du verwendet hast.
Büro-/Praxisfläche
Kategorie
Bürofläche
Baujahr
1992
Bezug
kurzfristig
Geschoss
Erdgeschoss
Energie & Heizung
Warum sehe ich diese Anzeige? – Du siehst diese Anzeige basierend auf Ihrer Navigation auf unserer Website und den Suchkriterien, die du verwendet hast.
Heizwärmebedarf (HWB)
78,00 kWh/(m²·a)
Gesamtenergieeffizienz (fGEE)
1,32
Weitere Energiedaten
Energieträger
Fernwärme
Heizungsart
Zentralheizung
Details
Objektbeschreibung
Kurzbeschreibung
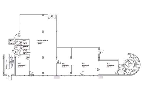
Loftartiges Büro mit angeschlossenem Lagerbereich in Schallmoos, Stadt Salzburg zu mieten.
Objekt
Loftartiges Büro mit angeschlossenem Lagerbereich in Schallmoos, Stadt Salzburg zu mieten.
Der Gewerbepark Vogelweiderstraße wurde im Jahre 1996 errichtet und mit dem Salzburger...
Ausstattung
- Industrieboden
- Klimatisiert
- Lastenlift
- Stellplätze TG € 68,00/Stk netto zzgl. USt.
- Stellplätze im Freien € 58,00/Stk netto zzgl. USt.
- 6 E-Ladestationen zur Allgemeinnutzung
Preisinformation
Nettokaltmiete: 2.760,00 EUR
Weitere Informationen
Sonstiges
Wir sind eine Tochtergesellschaft der ÖRAG-Österreichische Realitäten AG, Wien, genannt ÖRAG, und es besteht daher unter Umständen ein sonstiges wirtschaftliches Naheverhältnis im Sinne des Maklergesetzes zur ÖRAG und ihren anderen Tochtergesellschaften in Österreich. Das Naheverhältnis zur ÖRAG ergibt sich zB...
Anbieter der Immobilie
Online-ID: 2chah5q
Referenznummer: 50504096
Finde Angebote wie dieses
Hier geht es zu unserem Impressum, den Allgemeinen Geschäftsbedingungen, den Hinweisen zum Datenschutz und nutzungsbasierter Online-Werbung.