
CUBION Immobilien AG
Herr Tiziano Sanna
+49 ···
Nr. anzeigenPreise & Kosten
Provision für Mieter
provisionsfrei
Warum sehe ich diese Anzeige? – Du siehst diese Anzeige basierend auf Ihrer Navigation auf unserer Website und den Suchkriterien, die du verwendet hast.
Lage
Das Objekt liegt in der begehrtesten Lage in Duisburg, direkt am Innenhafen!
Die Nahversorgung ist durch ein breites Angebot an Gastronomien, wie die Losteria, das Vapiano oder auch das neue "Schiffchen" im Hafen, die sich in direkter Nachbarschaft befinden, hervorragend. Auch die Anbindung an den öffentlichen Nah- und...
Büro-/Praxisfläche
Kategorie
Bürofläche
Baujahr
1924
Bezug
kurzfristig nach Vereinbarung
Energie & Heizung
Warum sehe ich diese Anzeige? – Du siehst diese Anzeige basierend auf Ihrer Navigation auf unserer Website und den Suchkriterien, die du verwendet hast.
Wärme
Strom
Energieausweistyp
Verbrauchsausweis
Gebäudetyp
Nicht-Wohngebäude
Baujahr laut Energieausweis
1924
Gültigkeit
bis 11.02.2023
Endenergieverbrauch (Wärme)
132,00 kWh/(m²·a)
Endenergieverbrauch (Strom)
15,00 kWh/(m²·a)
Weitere Energiedaten
Energieträger
Gas
Details
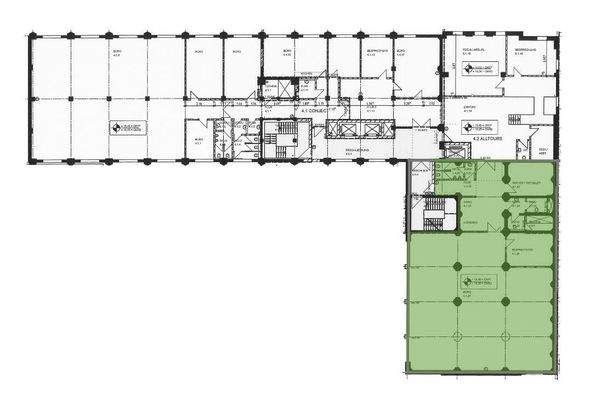
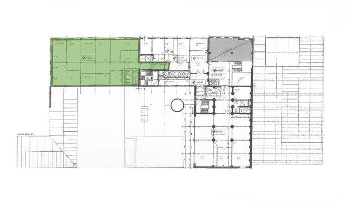
Objektbeschreibung
Die angebotene Bürofläche befindet sich in dem historischen und denkmalgeschützten Speichergebäude, welches 2002 durch umfassende Sanierung einer hochmodernen neuen Nutzung zugeführt worden ist. Das neue und helle Foyer wirkt sehr einladend und ist äußerst repräsentativ. Über zwei moderne Aufzüge gelangen Sie in die...
Ausstattung
Bodenbelag: Teppichboden
EDV-Verkabelung: teilweise vom Vormieter
Kabelführung: Deckenanschlusssäulen
Kühlung: 6. OG: voll klimatisiert
Sonnenschutz: innen liegend (manuell)
Teeküche: Anschlüsse in jeder Mieteinheit, teilweise Einbauküchen
Beleuchtung: Rasterdecken- und Pendelleuchten
Aufzug...
Weitere Informationen
Sonstiges
GEG 2020: Ein Energieausweis liegt zurzeit nicht vor.
Dieses Angebot ist provisionsfrei für den Mieter!
Alle Informationen in diesem Exposé beruhen auf Angaben, die wir vom Vermieter erhalten haben. Für Richtigkeit und Vollständigkeit übernehmen wir keine Gewähr. Zwischenvermietung vorbehalten...
Anbieter der Immobilie

CUBION Immobilien AG
Akazienallee 65, 45478 Mülheim
Online-ID: 2chue5j
Referenznummer: 1221
Finde Angebote wie dieses
Hier geht es zu unserem Impressum, den Allgemeinen Geschäftsbedingungen, den Hinweisen zum Datenschutz und nutzungsbasierter Online-Werbung.