
Riker Wohnbau + Immobilien GmbH
Büro Remshalden
+49 ···
Nr. anzeigenPreise & Kosten
Provision für Käufer
provisionsfrei
Lage
Das Neubauvorhaben im Mörikeweg 12 liegt in einer begehrten Stadtrandlage von Schorndorf. Die ruhige Umgebung in einem gewachsenen Wohngebiet bietet die perfekte Balance zwischen urbanem Leben und naturnaher Erholung. Hier können Sie die Vorzüge eines entspannten Wohnens genießen, ohne auf die Nähe zur Innenstadt verzichten...
Das Haus
Kategorie
Reihenmittelhaus
Baujahr
2025
Energie & Heizung
Warum sehe ich diese Anzeige? – Du siehst diese Anzeige basierend auf Ihrer Navigation auf unserer Website und den Suchkriterien, die du verwendet hast.
Energieausweistyp
Bedarfsausweis
Gebäudetyp
Wohngebäude
Baujahr laut Energieausweis
2023
Gültigkeit
bis 18.03.2035
Effizienzklasse
A+
Endenergiebedarf
29,00 kWh/(m²·a)
Weitere Energiedaten
Energieträger
Elektro, Gas
Details
Objektbeschreibung
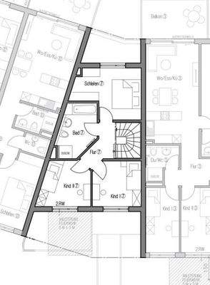
Das Bauvorhaben im Mörikeweg 12, 12/1, 12/2 bildet ein stimmiges Ensemble von klassisch inspirierter Architektur auf einem hanglagigen Grundstück mit terrassierten Gartenanteilen im rückseitigen Bereich der Gebäude. Unsere Wohnung 7 ist ein klassisches "Haus im Haus" nach WEG geteilt mit separatem Hauszugang. Das Raumangebot...
Anbieter der Immobilie
Riker Wohnbau + Immobilien GmbH
In den Breitwiesen 19, 73630 Remshalden
Online-ID: 2cjft5v
Referenznummer: 1042-07
Finde Angebote wie dieses
Hier geht es zu unserem Impressum, den Allgemeinen Geschäftsbedingungen, den Hinweisen zum Datenschutz und nutzungsbasierter Online-Werbung.