
ISS Communication Services GmbH
Herr Arndt Unterstein
+49 ···
Nr. anzeigenPreise & Kosten
Kaution
3 MM
Provision für Mieter
provisionsfrei
Warum sehe ich diese Anzeige? – Du siehst diese Anzeige basierend auf Ihrer Navigation auf unserer Website und den Suchkriterien, die du verwendet hast.
Lage
1A-Lage
Das Objekt liegt am nördlichen Stadtrand von Köln, nahe dem Fühlinger See an der A1. Das entwicklungsfähige Umland ist geprägt von Gewerbestandorten und viel Grün.
Über die nahe Autobahnauffahrt Köln-Niel und die Industriestraße gelangen Sie in etwa 20 Minuten in das Kölner Zentrum mit dem Hauptbahnhof oder...
Büro-/Praxisfläche
Kategorie
Bürofläche
Baujahr
2003
Bezug
Auf Anfrage
Energie & Heizung
Warum sehe ich diese Anzeige? – Du siehst diese Anzeige basierend auf Ihrer Navigation auf unserer Website und den Suchkriterien, die du verwendet hast.
Wärme
Strom
Energieausweistyp
Verbrauchsausweis
Gebäudetyp
Nicht-Wohngebäude
Baujahr laut Energieausweis
2003
Wesentliche Energieträger
Gas,Strom
Gültigkeit
seit 15.09.2021
Endenergieverbrauch (Wärme)
83,00 kWh/(m²·a)
Endenergieverbrauch (Strom)
66,00 kWh/(m²·a)
Details
Objektbeschreibung
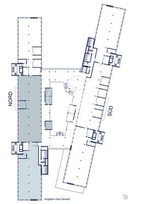
Der Bürokomplex aus dem Jahre 2003 erfüllt alle Anforderungen an moderne Arbeitswelten für Büro und Konferenznutzung. Ein repräsentativer Empfangs- und Foyerbereich schafft Zugang zu allen vier Etagen. Fünf Treppenanlagen, drei Aufzüge und eine umlaufende Galerie verbinden die Geschosse in den zwei barrierefreien Baukörpern...
Weitere Informationen
Sonstiges
Die Büro- und Konferenzflächen befinden sich im 3. Obergeschoss. Die Gesamtmietfläche in diesem Geschoss von 4.006 m² teilen sich wie folgt auf:
- Mietfläche 1 Nord Büro: ca. 614 m²
- Mietfläche 2 Nord Büro: ca. 750 m²
- Mietfläche 3 Nord Büro: ca. 581 m²
- Konferenzfläche Süd: ca. 87 m²
-...
Dokumente
Anbieter der Immobilie
ISS Communication Services GmbH
Theodorstraße 178, 40472 Düsseldorf
Online-ID: 2clxu55
Referenznummer: 400109-1-3
Finde Angebote wie dieses
Hier geht es zu unserem Impressum, den Allgemeinen Geschäftsbedingungen, den Hinweisen zum Datenschutz und nutzungsbasierter Online-Werbung.