Version: 8.24.0Navigation überspringen
499.900 €
3 Zimmer  •  74,4 m²
Immowelt logo

Wohnung zum Kauf • provisionsfrei • als Kapitalanlage geeignet
499900 €
6.718 €/m²
3 Zimmer  •  74,4 m²

Kapitalanlage - 3 Zi EG Wohnung mit Terrasse

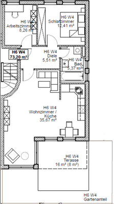
Diese großzügig geschnittene Traumwohnung befindet sich im Erdgeschoss eines Mehrfamilienhauses im Wohnpark Tegernau, in Wasserburg am Inn.
Die einladend helle Wohnung bietet Ihnen durch folgende Räumlichkeiten eine angenehme Wohnatmosphäre:
- ein zeitlos hell gefliester Flur
- das Schlafzimmer, sowie das Kinderzimmer mit Fenstern zu einem autofreien Weg
- Tageslichtbad mit Badewanne, Waschbecken, spülrandlose Toilette und
Anschlussmöglichkeit für Waschmaschine und Trockner.
Der großzügige Wohn- und Essbereich bietet Ihnen Zugang zur offenen Küche, sowie zur Terrasse mit einem kleinen Gartenanteil zur Verwirklichung Ihrer Ideen. Zu der Wohnung gehört auch ein 5 m² großes Kellerabteil.
Ein TG-Stellplatz kann für 28.500 € erworben werden.

Die Wohnung ist vermietet
KM 955 €
NK 230 €
TG 60 €

Merkmale

  • vermietet
  • Erdgeschoss
  • offene Küche
  • Kelleranteil
  • Tiefgarage
  • Gartenmitbenutzung
  • Terrasse
  • DSL-Anschluss

Realisiere Dein Projekt

Bausubstanz und Energie

Energieausweis

A
  • Baujahr2020
  • Zustand der ImmobilieGepflegt
  • HeizungsartFußbodenheizung
  • EnergieträgerGas
Immowelt logo

Preisdetails

Kaufpreis
499900 €
6.718,18 €/m²
Preis pro Stellplatz
28500 €
Provision für Käufer
provisionsfrei
Geschätzte Gesamtkosten
527.396 €1
Kaufpreis
499.900 €
Notarkosten (1,5%)
7.499 €
Grunderwerbsteuer (3,5%)
17.497 €
Grundbucheintrag (0,5%)
2.500 €
1Der angezeigte Wert ist eine automatisch berechnete Schätzung von immowelt.
2Bei den Angaben handelt es sich um ortsübliche Werte. Individuelle Kosten können abweichen.

Lage

address-icon
Am Gerblanger 48bBurgerfeldWasserburg am Inn (83512)
Das Objekt befindet sich im Ortsteil Tegernau oberhalb der Altstadt, zu der es nur wenige Geh- und Fahrminuten sind, die auch bequem mit dem Stadtbus zurück gelegt werden können. In unmittelbarer Umgebung befinden sich verschiedene Einkaufsmöglichkeiten des täglichen Bedarfs, eine Apotheke, Gastronomiebetriebe, das bekannte Bade- und Freizeitzentrum Badria, sowie ein Fitnesscenter. Die historische Altstadt mit den gotischen Arkaden, zahlreichen Straßencafes und vielen über die Stadtgrenzen bekannten Festlichkeiten und kulturellen Veranstaltungen bietet ebenso einen hohen Freizeitwert. Auch der Chiemsee und das Chiemgauer Land laden zur Erholung und Entspannung ein. Der Stadtbus hält in ca. 200 m Entfernung und bringt Sie in die Altstadt und nach Wasserburg / Reitmehring, von dort fährt Sie die Bahn in alle Richtungen. Eine S-Bahnverbindung nach München ist in Planung.

Weitere Informationen

Besichtigungstermine Gerne informieren wir Sie in einem persönlichen Gespräch detaillierter über die Wohnung. Sie können unter der Tel. Nr. 08071 - 9 211 431 einen Besichtigungstermin vereinbaren.
Stichworte Versorgung: Städtische Wasserversorgung, Städtische Stromversorgung Serviceleistungen: Hausmeister Sonstiges: ISDN

Weitere Services

Lust auf eine Besichtigung?
Eine Frage zur Immobilie?
Nachricht hinzufügen
Mit der Nutzung der oben angegebenen Telefonnummer oder durch Klicken auf „Kontaktieren“ akzeptierst Du die Allgemeinen Nutzungsbedingungen, denen Du jederzeit widersprechen kannst. Weitere Informationen zum Datenschutz

Über den Anbieter

Pfarrer-Neumair-Str. 7-9, 83512 Wasserburg am Inn
partner badge
Diamond Partner
Herr Horst LeissnerDein Kontakt
Keine Telefonnummer hinterlegt
Keine Telefonnummer hinterlegt
Online-ID: 2cmag5s
Referenznummer: H6W4
Leissner Wohnbau GmbH
Bewertung: 4,3 von 5 Sternen
Nachricht hinzufügen
Mit der Nutzung der oben angegebenen Telefonnummer oder durch Klicken auf „Kontaktieren“ akzeptierst Du die Allgemeinen Nutzungsbedingungen, denen Du jederzeit widersprechen kannst. Weitere Informationen zum Datenschutz
Wie zufrieden bist du mit dieser Seite (nicht mit der Immobilie selbst)?