
Schantl ITH Immobilientreuhand GmbH
Herr Samir Agha-Schantl
004 ···
Nr. anzeigenPreise & Kosten
Provision für Käufer
3% des Kaufpreises zzgl. 20% USt.
Lage
Mitten in Meidling!
Dieses tolle Projekt bietet durch die zentrale Lage im 12.Bezirk viele Möglichkeiten! Beliebte Ausflugsziele wie das Schloss Schönbrunn und der Tiergarten oder das Erholungsgebiet Wienerberg sind in Kürze zu erreichen.
Die Versorgung mit Geschäften des täglichen Bedarfs ist perfekt! Quasi gegenüber...
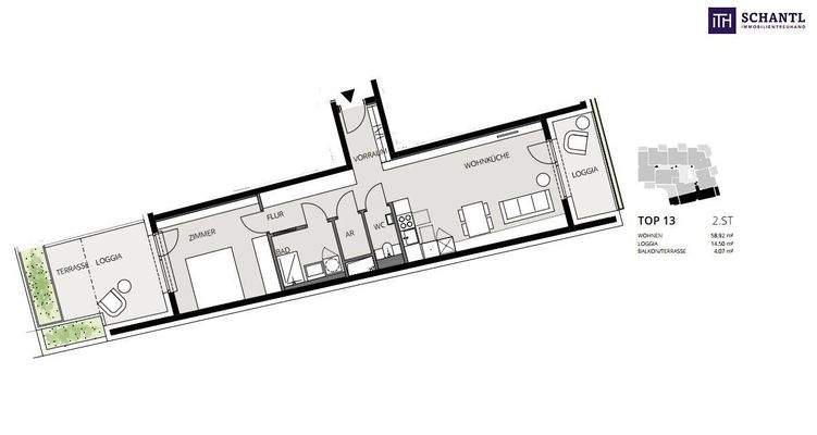
Die Wohnung
Wohnungslage
2. Geschoss
Bezug
Ende 2025
Wohnanlage
Energie & Heizung
Warum sehe ich diese Anzeige? – Du siehst diese Anzeige basierend auf Ihrer Navigation auf unserer Website und den Suchkriterien, die du verwendet hast.
Heizwärmebedarf (HWB)
23,83 kWh/(m²·a)
Gesamtenergieeffizienz (fGEE)
0,75
Weitere Energiedaten
Energieträger
Fernwärme
Haustyp
Niedrigenergiehaus
Heizungsart
Fußbodenheizung
Details
Objektbeschreibung
Hier wartet ein Neubau-Traumprojekt auf Sie! Perfekt als Anlage als auch für Eigennutzer!
43 ideal geplante Traumwohnungen (Büros im EG) mit Größen von ca. 36m² bis ca. 110m² - alle mit Balkonen/Terrassen oder Gärten - werden Sie verzaubern! Hier finden Sie für jedes Budget und jeden Geschmack die richtige Wohnung! 30...
Weitere Informationen
Stichworte
Garage vorhanden, Nord-Ost-Süd-West-Balkon/Terrasse, Fahrradraum, Rolladen, Nutzfläche: 75,46 m², Anzahl der Badezimmer: 1, Anzahl der separaten WCs: 1, Anzahl Terrassen: 1, Anzahl Loggias: 2, Balkon-Terrassen-Fläche: 18,57 m², Kellerfläche: 1,50 m², Bundesland: Wien, 7 Etagen
Anbieter der Immobilie

Schantl ITH Immobilientreuhand GmbH
Messendorferstraße 71a, 8041 Graz
Online-ID: 2cmr456
Referenznummer: OBGC20231020102336061528b37c8d0
Finde Angebote wie dieses
Günstige Immobilienfinanzierung einfach online berechnen
Persönliches Angebot berechnenWarum sehe ich diese Werbung? – Du siehst diese Werbung basierend auf Deiner Navigation auf unserer Website und der von Dir verwendeten Suchkriterien.
Diese Werbung wird bezahlt von durchblicker
Werbung melden
Hier geht es zu unserem Impressum, den Allgemeinen Geschäftsbedingungen, den Hinweisen zum Datenschutz und nutzungsbasierter Online-Werbung.