NMB-Immobilienverwaltungs GmbH

Frau Carmen Seebe

ERSTBEZUG: 3-Zimmer-Dachgeschosswohnung in Altstadtvilla

€ 555
Kaltmiete zzgl. NK
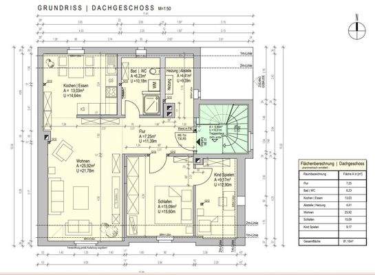
81,10 m²
Wohnfläche ca.
3
Zimmer

Der Anbieter dieses Objekts hat gegenüber der AVIV Germany GmbH als Betreiber dieses Online-Marktplatzes erklärt, nicht als Unternehmer im Sinne des § 1 KSchG zu handeln. Die im Verbraucherschutzrecht der Union verankerten Verbraucherrechte (insbesondere Informationspflichten und Rücktritts- bzw. Widerrufsrechte) finden auf den Vertrag zwischen dem Anbieter des Objekts und Ihnen (dem Interessenten) keine Anwendung.

Gewerblicher Anbieter

Der Anbieter dieses Objekts hat gegenüber der AVIV Germany GmbH als Betreiber dieses Online-Marktplatzes erklärt, als Unternehmer im Sinne des § 1 KSchG zu handeln.

AdresseAugust Bebel Straße 12 12
06618 Naumburg (Saale) 
Auf Karte ansehen

Preise & Kosten

Kaltmiete € 555 Nebenkosten € 120 Heizkosten nicht in Nebenkosten enthalten Warmmiete € 675

Kaution

1665,00

Lage

Die gemütliche Dachgeschosswohnung befindet sich im Herzen von Naumburg. Sie bietet Ihnen einen idealen Rückzugsort nahe des Stadtzentrums. Des Weiteren ermöglicht sie eine bequeme Erreichbarkeit von Einkaufsmöglichkeiten und Restaurants sowie eine hervorragende Anbindung an öffentliche Verkehrsmittel. Schulen, Kindergärten...

Mehr anzeigen

Die Wohnung

Wohnungslage

2. Geschoss

  • Bad mit Fenster und Dusche
  • Gartenmitbenutzung
  • Ausblick: Fernblick
  • offene Küche
  • Böden: Fliesenboden, Laminat
  • Fenster: Holzfenster
  • Weitere Räume: Kelleranteil, Abstellraum, Wasch-Trockenraum

Wohnanlage

  • Baujahr: 1900
  • Stellplatz: Garage

Energie & Heizung

info

Energieausweis: für diesen Gebäudetyp nicht notwendig

Weitere Energiedaten

Heizungsart

Etagenheizung

Details

Objektbeschreibung

Objektbeschreibung
Bei diesem Objekt handelt es sich um den Erstbezug einer 3-Zimmerwohnung mit charmanten Dachgeschoss-Flair und Gartenbereich. Das Dachgeschoss der Altstadtvilla wurde neu ausgebaut und befindet sich in ruhiger und gleichzeitig zentraler Lage. Vor dem Haus befindet sich ein kostenloser Stellplatz...

Mehr anzeigen

Weitere Informationen

Sonstiges
Besichtigung
Nutzen Sie die Gelegenheit, um sich persönlich von den Vorzügen dieser Wohnung zu überzeugen. Kontaktieren Sie uns für weitere Informationen oder um Ihren Besichtigungstermin zu vereinbaren. Wir stehen Ihnen gern für weitere Fragen zur Verfügung.

Anbieter der Immobilie

NMB-Immobilienverwaltungs GmbH

Grochlitzer Straße 54, 06618 Naumburg

user

Frau Carmen Seebe

Dein Ansprechpartner

Anbieter-Profil Anbieter-Impressum

Online-ID: 2csqe5h

Finde Angebote wie dieses

imageimageimage

Hier geht es zu unserem Impressum, den Allgemeinen Geschäftsbedingungen, den Hinweisen zum Datenschutz und nutzungsbasierter Online-Werbung.