

Sparkasse Oberpfalz Nord in Vertretung der Sparkassen-Immobilien-Vermittlungs-GmbH
Herr Manuel Braun
096 ···
Nr. anzeigenPreise & Kosten
Provision für Käufer
provisionsfrei
Lage
Waldsassen ist eine Stadt im Oberpfälzer Landkreis Tirschenreuth mit ca. 6.600 Einwohnern an der Bayerischen Porzellanstraße und das kulturelle Zentrum des Oberpfälzer Stiftlands.
Die Stadt liegt eingebettet zwischen Kohlwald und Oberpfälzer Wald im Tal der Wondreb.
Die tschechische Stadt Cheb (Eger) ist zehn...
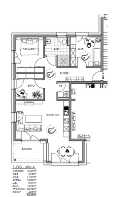
Die Wohnung
Wohnungslage
1. Geschoss
Wohnanlage
Energie & Heizung
Warum sehe ich diese Anzeige? – Du siehst diese Anzeige basierend auf Ihrer Navigation auf unserer Website und den Suchkriterien, die du verwendet hast.
Energieausweistyp
Bedarfsausweis
Gebäudetyp
Wohngebäude
Baujahr laut Energieausweis
2022
Wesentliche Energieträger
Elektroenergie, Umweltwärme
Gültigkeit
08.11.2024 bis 08.11.2034
Effizienzklasse
A+
Endenergiebedarf
20,20 kWh/(m²·a)
Weitere Energiedaten
Energieträger
Elektro
Heizungsart
Fußbodenheizung, Zentralheizung
Details
Objektbeschreibung
Gönnen Sie sich etwas Besonderes.
Modernes Wohnen im Wondrebtal in Waldsassen.
In der schönen Klosterstadt Waldsassen entsteht ein weiteres vierstöckiges Bauwerk mit Blick ins Grüne. In Kombination mit einer zentralen Lage wird der Traum vom Wohnen auf höchstem Niveau wahr. Verschiedene Einkaufsmöglichkeiten, die...
Ausstattung
Besonders hervorzuheben sind folgende Aspekte:
- beste energetische Bauweise
- sehr geräumige Dachterrassen, Balkone und Terrassen
- Personenaufzug vorhanden
- Fußbodenheizung
- kontrollierte Wohnraum Be- und Entlüftung
- hochwertige und moderne Ausstattung
- jede Wohnung verfügt über ein eigenes...
Weitere Informationen
Stichworte
Anzahl der Schlafzimmer: 2, Anzahl der Badezimmer: 1, Balkon-Terrassen-Fläche: 4,03 m², Bundesland: Bayern, 4 Etagen
Dokumente
Anbieter der Immobilie
Sparkasse Oberpfalz Nord in Vertretung der Sparkassen-Immobilien-Vermittlungs-GmbH
Sparkassenplatz 1, 92637 Weiden

Online-ID: 2ctkm5x
Referenznummer: 1/20/112-112/010023-4
Finde Angebote wie dieses
Hier geht es zu unserem Impressum, den Allgemeinen Geschäftsbedingungen, den Hinweisen zum Datenschutz und nutzungsbasierter Online-Werbung.