
CUBION Immobilien AG
Herr Tiziano Sanna
+49 ···
Nr. anzeigenPreise & Kosten
Provision für Mieter
provisionsfrei
Warum sehe ich diese Anzeige? – Du siehst diese Anzeige basierend auf Ihrer Navigation auf unserer Website und den Suchkriterien, die du verwendet hast.
Lage
Das "ParkView Business" steht in exklusiver und zentraler Lage zwischen Innenstadt und Universität. Dort wächst derzeit ein neues, hochwertiges, lebendiges, urbanes und grünes Viertel zum Wohnen, Arbeiten und Erholen: Das Universitätsviertel-Grüne Mitte Essen.
Für den attraktiven Standort hat sich u.a. die AOK...
Büro-/Praxisfläche
Kategorie
Bürofläche
Baujahr
2014
Bezug
nach Vereinbarung
Energie & Heizung
Warum sehe ich diese Anzeige? – Du siehst diese Anzeige basierend auf Ihrer Navigation auf unserer Website und den Suchkriterien, die du verwendet hast.
Wärme
Strom
Energieausweistyp
Verbrauchsausweis
Gebäudetyp
Nicht-Wohngebäude
Baujahr laut Energieausweis
2012
Gültigkeit
bis 17.01.2032
Endenergieverbrauch (Wärme)
65,00 kWh/(m²·a) - Warmwasser enthalten
Endenergieverbrauch (Strom)
12,00 kWh/(m²·a) - Warmwasser enthalten
Weitere Energiedaten
Energieträger
Elektro, Fernwärme
Details
Objektbeschreibung
Das "PARK VIEW BUSINESS" wurde 2012/2013 gebaut und befindet sich in der renommierten Lage der Essener Innenstadt. Die Immobilie besteht aus sieben oberirdischen Geschossen, wobei das Dachgeschoss als Penthousebüro mit zwei großen Dachterrassen ausgestaltet wurde. Weitere Etagen verfügen über attraktive Loggien...
Ausstattung
Bodenbelag: nach Mieterwunsch
EDV-Verkabelung: CAT 7, Glasfaseranschluss
Kabelführung: Hohlraumboden (Bodentanks)
Kühlung: Betonkernaktivierung (4. OG)
Sonnenschutz: Raffstoren außen (elektrisch)
Küche: nach Vereinbarung
Beleuchtung: Deckenleuchten (abgehängt)
Aufzug: Personenaufzug
Heizung...
Weitere Informationen
Sonstiges
Dieses Angebot ist provisionsfrei für den Mieter!
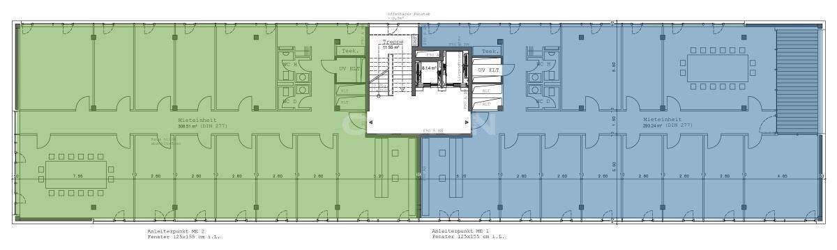
Alle Informationen in diesem Exposé beruhen auf Angaben, die wir vom Vermieter erhalten haben. Für Richtigkeit und Vollständigkeit übernehmen wir keine Gewähr. Zwischenvermietung vorbehalten. Die Grundrisse müssen nicht mit der aktuellen Raumaufteilung...
Anbieter der Immobilie

CUBION Immobilien AG
Akazienallee 65, 45478 Mülheim
Online-ID: 2ctx85j
Referenznummer: 1586
Finde Angebote wie dieses
Hier geht es zu unserem Impressum, den Allgemeinen Geschäftsbedingungen, den Hinweisen zum Datenschutz und nutzungsbasierter Online-Werbung.