
RUHR REAL GmbH
Herr Frederic Jeschke
+49 ···
Nr. anzeigenPreise & Kosten
Provision für Mieter
provisionsfrei
Warum sehe ich diese Anzeige? – Du siehst diese Anzeige basierend auf Ihrer Navigation auf unserer Website und den Suchkriterien, die du verwendet hast.
Lage
Die Fußgängerzone befindet sich in unmittelbarer Nähe zum Gebäude. Dort befinden sich auch zahlreiche Einkaufsmöglichkeiten sowie ein breites Gastronomieangebot. Das Objekt befindet sich in der Nähe zu dem gut ausgebauten Schienen-und Straßenbahnnetz. Die Wuppertaler Schwebebahn ist fußläufig in 3 min erreichbar. Auch die...
Büro-/Praxisfläche
Kategorie
Bürofläche
Bezug
Nach Vereinbarung
Details
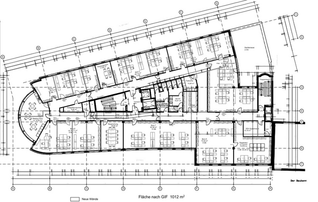
Objektbeschreibung
Das sechsgeschossige Büro- und Geschäftshaus verfügt über eine Bügeleisen- Form und wird vertikal durch zwei mittig angeordnete Aufzüge sowie ein Treppenhaus erschlossen. Der Zutritt zu den einzelnen Büroflächen erfolgt über die Erschließung des Mittelflures.
Die Mietflächen verfügen jeweils über eine Terrasse und sind...
Ausstattung
. Terrassenflächen
. mechanische Be- und Entlüftung
. Teppichboden
. Bodentanks
. Teeküche
. zwei Personenaufzüge
Preisinformation
Nettokaltmiete: 10,00 EUR
Weitere Informationen
Sonstiges
Es gelten ausschließlich unsere AGB (www.ruhr-real.de/agb). Die Halle ist nicht für Veranstaltungsräume geeignet. Wir möchten Sie darauf hinweisen, dass die Angaben ausschließlich auf den uns vom Eigentümer übermittelten Unterlagen und Informationen basieren. Für Richtigkeit und Vollständigkeit übernehmen wir...
Anbieter der Immobilie

RUHR REAL GmbH
Holsterhauser Platz 2, 45147 Essen
Online-ID: 2cupz5c
Referenznummer: 2890/E1
Finde Angebote wie dieses
Hier geht es zu unserem Impressum, den Allgemeinen Geschäftsbedingungen, den Hinweisen zum Datenschutz und nutzungsbasierter Online-Werbung.