

DAHLER Potsdam | Berlin-Wannsee | Kleinmachnow
Herr Kevin Manhardt
033 ···
Nr. anzeigenPreise & Kosten
Provision für Käufer
7,14% inkl. MwSt. bezogen auf den beurkundeten Kaufpreis
Abschreibung/Anlage
Denkmalschutz-Afa
Lage
* prominente Wohnlage in der Berliner Vorstadt
* hochwertige Restaurants in direkter Umgebung
* hervorragende Anbindung an den ÖPNV durch die ca. 20 Meter entfernte Straßenbahnhaltestelle
* diverse Supermärkte in der Umgebung
* alle Schulformen und Kitas sind in Potsdam zu finden
* medizinische Versorgung ist...
Büro-/Praxisfläche
Kategorie
Bürogebäude
Baujahr
1858
Derzeitige Nutzung
vermietet
Energie & Heizung
Warum sehe ich diese Anzeige? – Du siehst diese Anzeige basierend auf Ihrer Navigation auf unserer Website und den Suchkriterien, die du verwendet hast.
Energieausweis: für diesen Gebäudetyp nicht notwendig
Weitere Energiedaten
Energieträger
Gas
Heizungsart
Zentralheizung
Details
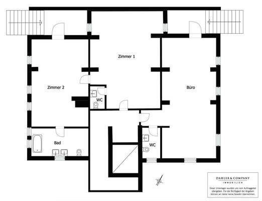
Objektbeschreibung
* denkmalgeschützte und unsanierte "Villa Rabe" aus dem Jahr 1858
* klassizistischer Baustil mit zeitgenössischen Elementen
* ca. 2.115 m² Grundstück
* aktuell ca. 262 m² Wohnfläche in der "Villa Rabe" und ca. 166,55 m² in der Remise
* nach Sanierung und Ausbau der "Villa Rabe" ist eine Vergrößerung der Fläche...
Ausstattung
* Baugenehmigung für den Ausbau des Dachgeschosses zu Wohnzwecken und des Souterrains zu gewerblichen Zwecken in der "Villa Rabe" liegt vor
* Lage im Geltungsbereich des Bebauungsplans 35-2 "Südliche Berliner Vorstadt"
* Einordnung der Liegenschaft im Bebauungsplan als WA2 (Allgemeines Wohngebiet 2)
*...
Preisinformation
1 Garagenstellplatz
Weitere Informationen
Sonstiges
Ihre Werte sind bei uns in besten Händen
DAHLER & COMPANY ist auf die Vermittlung hochwertiger Wohnimmobilien in bevorzugten Lagen spezialisiert. Seit über 25 Jahren wird unser Unternehmen von Kirsten und Björn Dahler geführt und setzt mit Innovationskraft und Servicequalität Maßstäbe in der Branche...
Anbieter der Immobilie

Online-ID: 2cwvs5d
Referenznummer: DC-POT6731-49-REMISE
Finde Angebote wie dieses
Hier geht es zu unserem Impressum, den Allgemeinen Geschäftsbedingungen, den Hinweisen zum Datenschutz und nutzungsbasierter Online-Werbung.