

Zeising Real Estate Immobilien
Herr Reiner Zeising
091 ···
Nr. anzeigenPreise & Kosten
Provision für Mieter
provisionsfrei
Warum sehe ich diese Anzeige? – Du siehst diese Anzeige basierend auf Ihrer Navigation auf unserer Website und den Suchkriterien, die du verwendet hast.
Lage
Leinburg liegt am Fuße des Moritzbergs. Es besteht eine gute öffentliche Verkehrsanbindung. Eine Bushaltestelle ist nur wenige 100 m von den Mieträumen entfernt. Man gelangt damit direkt zur S-Bahn in Röthenbach, beziehungsweise nach Lauf a. d. Pegnitz und auch nach Altdorf. Der Autobahnanschluss Leinburg der A6 ist nur ca. 6...
Büro-/Praxisfläche
Kategorie
Bürofläche
Baujahr
2000
Bezug
01.01.24
Energie & Heizung
Warum sehe ich diese Anzeige? – Du siehst diese Anzeige basierend auf Ihrer Navigation auf unserer Website und den Suchkriterien, die du verwendet hast.
Weitere Energiedaten
Heizungsart
Fußbodenheizung
Details
Objektbeschreibung
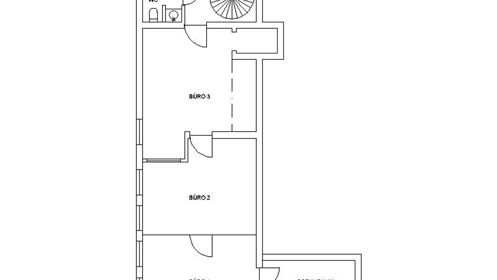
2 Räume werden durch eine raumhohe und raumbreite Glaswand abgetrennt. Der dritte Bereich bietet über ein großes rundes Designfenster guten Blickkontakt zu den übrigen beiden Zimmern.
1 zusätzlicher abgetrennter Sozialraum
1 neu gestalteter Sanitärraum mit WC und Dusche
Ausstattung
Die Büroräume verfügen über einen eigenen Hauseingang. Vielfältige Nutzung möglich. Es handelt sich um 3 nebeneinander liegende Zimmer mit EDV Verkabelung.
Viele und große Fensterflächen mit Blick in einen kleinen terrassierten Steingarten mit üppiger Gräser Bepflanzung.
Zusätzlicher Sozialraum mit neuwertiger...
Weitere Informationen
Besichtigungstermine
Nach Vereinbarung
Stichworte
Sonstiges: EDV-Verkabelung, frei werdend
Dokumente
Anbieter der Immobilie
Zeising Real Estate Immobilien
Preuschlwiesen 1, 91227 Leinburg

Online-ID: 2czpk59
Finde Angebote wie dieses
Hier geht es zu unserem Impressum, den Allgemeinen Geschäftsbedingungen, den Hinweisen zum Datenschutz und nutzungsbasierter Online-Werbung.