

Leo Wacker Immobilien
Herr Leo Wacker
030 ···
Nr. anzeigenPreise & Kosten
Provision für Käufer
3,57 % vom Kaufpreis inkl. MwSt.
Lage
Diese Wohnung befindet sich in einem der begehrtesten Stadtteile Berlins, weniger als 300 m vom Kurfürstendamm! Diese erstklassige Lage bietet eine perfekte Kombination aus urbanem Leben und grüner Umgebung. Charlottenburg ist ein traditionsreicher Stadtteil Berlins, der für seine elegante Architektur und seine historische...
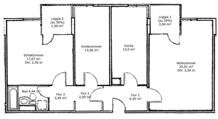
Die Wohnung
Bezug
01.10.2026
Wohnanlage
Energie & Heizung
Warum sehe ich diese Anzeige? – Du siehst diese Anzeige basierend auf Ihrer Navigation auf unserer Website und den Suchkriterien, die du verwendet hast.
Energieausweistyp
Verbrauchsausweis
Gebäudetyp
Wohngebäude
Baujahr laut Energieausweis
1978
Wesentliche Energieträger
Öl
Gültigkeit
27.03.2018 bis 27.03.2028
Effizienzklasse
E
Endenergieverbrauch
159,00 kWh/(m²·a)
Weitere Energiedaten
Energieträger
Fernwärme, Öl
Heizungsart
Zentralheizung
Details
Objektbeschreibung
Diese 3-Zimmer-Wohnung mit zwei Loggien überzeugt durch ihre praktische Raumaufteilung. Die windgeschützten und zum Westen orientierten Loggien und die gut geschmacksvoll renovierten Räumlichkeiten machen diese Wohnung zu einem attraktiven Angebot für Familien und Paare, die auf der Suche nach einer komfortablen und gut...
Weitere Informationen
Sonstiges
Info: Anzahl Etagen: 5
Ganz wichtig bei der Anfrage: Teilen Sie uns Ihre vollständigen Kontaktdaten: Vor- und Nachnamen, Adresse, Mail und Telefonnummer mit.
Seit einigen Jahren gilt in Deutschland das Geldwäschegesetz. Nach diesem Gesetz ist jedes Immobilienbüro verpflichtet, bei Kontaktaufnahme die...
Anbieter der Immobilie
Leo Wacker Immobilien
Gleditschstr. 66, 10781 Berlin

Online-ID: 2mrnz5p
Referenznummer: D 40
Finde Angebote wie dieses
Hier geht es zu unserem Impressum, den Allgemeinen Geschäftsbedingungen, den Hinweisen zum Datenschutz und nutzungsbasierter Online-Werbung.