

Einfamilienhaus zum Kauf491100 €3.468 €/m²5 Zimmer • 141,6 m² • 666 m² Grundstück
491100 €
3.468 €/m²
5 Zimmer • 141,6 m² • 666 m² Grundstück
Vom Traum zum Haus - mit ScanHaus in Naunhof durchstarten
Merkmale
- 666 m² Grundstück
- Gäste-WC
- unerschlossen
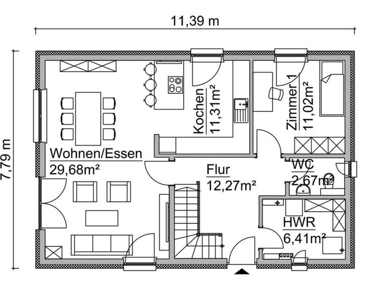
Grundrisse
Grundrisse
1 / 2
Realisiere Dein Projekt
Bausubstanz und Energie
Der Anbieter hat keine Informationen zum Energieverbrauch bereit gestellt.
- Zustand der ImmobilieProjektiert
- HeizungsartFußbodenheizung
- EnergieträgerLuft-/Wasser-Wärmepumpe
Preisdetails
Kaufpreis
491100 €
3.468,47 €/m²
Provision für Käufer
Bitte beachte, das Angebot kann bei Vertragsabschluss die Zahlung einer Provision beinhalten. Weitere Informationen erhältst Du vom Anbieter.
Geschätzte Gesamtkosten
545.466 €1
Kaufpreis
491.100 €
Kaufnebenkosten
54.366 €
2Notarkosten (1,5%)
7.367 €
Grunderwerbsteuer (5,5%)
27.011 €
Provision für Käufer (3,57%)
17.532 €
Grundbucheintrag (0,5%)
2.456 €
1Der angezeigte Wert ist eine automatisch berechnete Schätzung von immowelt.
2Bei den Angaben handelt es sich um ortsübliche Werte. Individuelle Kosten können abweichen.
Lage

Naunhof (04683)
Der Anbieter hat die genaue Adresse nicht freigegeben
Weitere Informationen
Weitere Services
Lust auf eine Besichtigung?
Eine Frage zur Immobilie?
Über den Anbieter
Immobilienberatung BehrendtMaklerbüro
Gohliser Straße 11, 04105 Leipzig
Partnerschaft
Herr Tobias BehrendtDein Kontakt
Online-ID: 2k9g45m
Referenznummer: 720_2_SH1142_V.B

Immobilienberatung Behrendt
Bewertung: 4,8 von 5 Sternen
Wie zufrieden bist du mit dieser Seite (nicht mit der Immobilie selbst)?

