
Immotreff
Herr Karlheinz Radschinsky
004 ···
Nr. anzeigenPreise & Kosten
Kaution
848,00
Provision für Mieter
Bitte beachte, das Angebot kann bei Vertragsabschluss die Zahlung einer Provision beinhalten. Weitere Informationen erhältst Du vom Anbieter.
Warum sehe ich diese Anzeige? – Du siehst diese Anzeige basierend auf Ihrer Navigation auf unserer Website und den Suchkriterien, die du verwendet hast.
Lage
Diese Immobilie befindet sich im Studentenviertel von Chemnitz - Bernsdorf. Der Hauptteil der Technischen Universität erstreckt sich hier entlang der Reichenhainer Straße. Die drittgrößte sächsische Universität zieht mit ihren zahlreichen Einrichtungen jährlich tausende Studenten in den beliebten Chemnitzer Stadtteil. Die...
Büro-/Praxisfläche
Kategorie
Praxisfläche
Baujahr
1994
Bezug
ab sofort
Geschoss
4. Geschoss
Energie & Heizung
Warum sehe ich diese Anzeige? – Du siehst diese Anzeige basierend auf Ihrer Navigation auf unserer Website und den Suchkriterien, die du verwendet hast.
Wärme
Strom
Energieausweistyp
Bedarfsausweis
Gebäudetyp
Nicht-Wohngebäude
Baujahr laut Energieausweis
1994
Wesentliche Energieträger
FERN
Gültigkeit
bis 14.01.2026
Endenergiebedarf (Wärme)
251,00 kWh/(m²·a)
Endenergiebedarf (Strom)
20,00 kWh/(m²·a)
Details
Objektbeschreibung
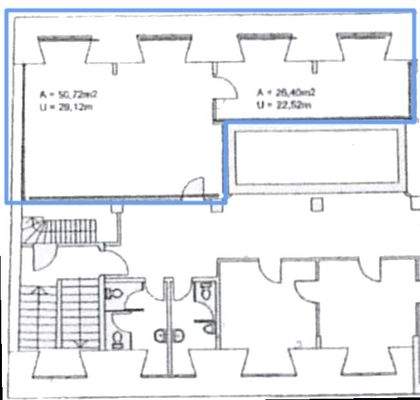
Diese ansprechende Bürofläche bietet Ihnen eine großzügige Arbeitsumgebung von insgesamt 77m², die sich flexibel nach Ihren Bedürfnissen gestalten lässt. Durch die Teilbarkeit, wie aus den Grundrissen im blau markierten Bereich ersichtlich, haben Sie die Möglichkeit, den Raum individuell anzupassen und optimal zu...
Ausstattung
Wunderschöne lichtdurchflutete Büroeinheit:
--> Parkmöglichkeiten vor dem Gebäude
--> Kellerräume
--> großzügige Büroflächen
--> schnelles Internet
--> moderne WC´s für Damen und Herren
Preisinformation
Nebenkosten pro qm: 2,00 EUR
Weitere Informationen
Sonstiges
Um eine schnelle und unkomplizierte Terminvereinbarung zu treffen, können Sie uns gern unter folgenden Rufnummern von 8:00 Uhr bis 18:00 erreichen.
Tel.: 0371 / 31 31 51
Funk: 0172 / 79 88 500
Sie können natürlich auch auf unserer Homepage sich über andere Angebote...
Dokumente
Anbieter der Immobilie

Immotreff
Walter-Oertel-Straße 24, 09112 Chemnitz
Online-ID: 2d3gf5w
Referenznummer: IC136724
Finde Angebote wie dieses
Hier geht es zu unserem Impressum, den Allgemeinen Geschäftsbedingungen, den Hinweisen zum Datenschutz und nutzungsbasierter Online-Werbung.