

Halle/Industriefläche zur Miete7 €/m²768,8 m² Lagerfläche • teilbar ab 150 m²
7 €
/m²
768,8 m² Lagerfläche • teilbar ab 150 m²
360° GRAD BESICHTIGUNG | AUTOBAHNNÄHE | EBENERDIG | BIS 3,20 M UKB | ANGERMANN NRW
Benötigst du weitere Informationen?

Merkmale
- Bezug: auf Anfrage
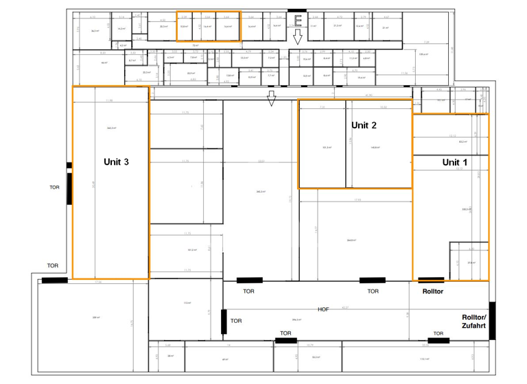
Grundrisse
Grundrisse
1 / 1
Realisiere Dein Projekt
Bausubstanz und Energie
Möchtest du Details zum Energieverbrauch?

Mietkosten
Monatliche Miete
7 €/m²
Provision für Mieter
Bitte beachte, das Angebot beinhaltet bei Vertragsabschluss die Zahlung einer Provision. Weitere Informationen erhältst Du vom Anbieter.
Kaution
keine Angabe
Lage

Eil, Köln (51149)
Der Anbieter hat die genaue Adresse nicht freigegeben
Weitere Services
Lust auf eine Besichtigung?
Eine Frage zur Immobilie?
Über den Anbieter
Josef-Lammerting-Allee 18, 50933 Köln
10 Jahre Partnerschaft

Frau Julia Kliber - Industrial & LogisticsDein Kontakt
Online-ID: 25C1RRPG654E
Referenznummer: 4968/G1


Angermann NRW GmbH
Wie zufrieden bist du mit dieser Seite (nicht mit der Immobilie selbst)?

