
Ringsmuth Immobilien
Frau Elina Strautmane
+43 ···
Nr. anzeigenPreise & Kosten
Provision für Käufer
3% des Kaufpreises zzgl. 20% USt.
Lage
S-Bahn Station nach Wien 350m entfernt
Wien U1 Oberlaa: ca. 14 Min. entfernt
SCS: ca. 9 Min. entfernt
Flughafen Schwechat: ca. 17 Min. entfernt
Spar: ca. 3 Min. enfernt
Tankstelle: ca. 3 Min. entfernt
Supermarkt: Billa Plus, Hofer ca. 5 Min. entfernt
Volksschule: 170m entfernt
Bahnhof Achau - S60...
Das Haus
Energie & Heizung
Warum sehe ich diese Anzeige? – Du siehst diese Anzeige basierend auf Ihrer Navigation auf unserer Website und den Suchkriterien, die du verwendet hast.
Heizwärmebedarf (HWB)
38,53 kWh/(m²·a)
Gesamtenergieeffizienz (fGEE)
0,85
Weitere Energiedaten
Haustyp
Massivhaus
Heizungsart
Fußbodenheizung, Luft-/Wasser-Wärmepumpe
Details
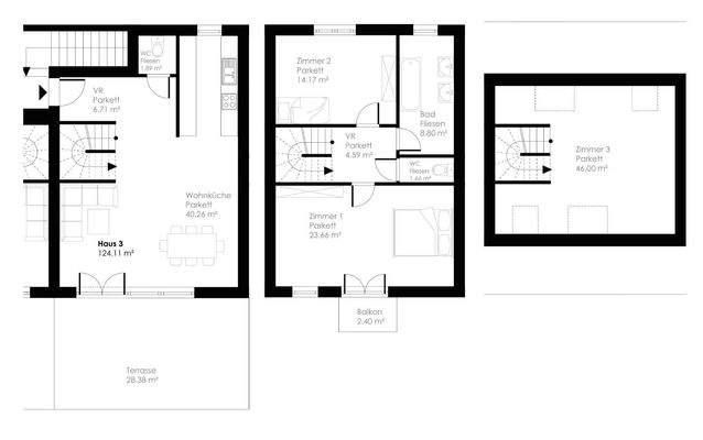
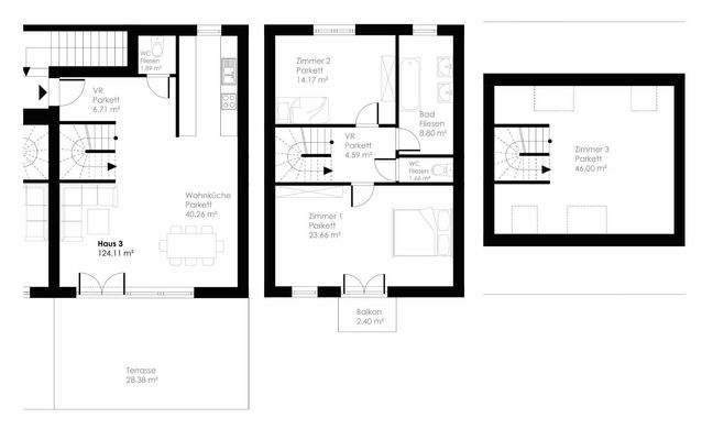
Objektbeschreibung
REIHENHAUS-NEUBAUPROJEKT - IN ZENTRALER LAGE IN ACHAU - WENIGE MINUTEN BIS ZUR SCS - GUTE VERBINDUNG NACH WIEN - IN KURZER ZEIT AM FLUGHAFEN
Die Reihenhäuser sind südlich ausgerichtet und bezaubern durch die schöne Raumaufteilung und die ruhige Innenhoflage. Alle Wohneinheiten verfügen über Freiflächen wie Balkon...
Weitere Informationen
Stichworte
Stellplatz vorhanden, Süd-Balkon/Terrasse, Nutzfläche: 178,52 m², Anzahl der Badezimmer: 1, Anzahl der separaten WCs: 2, Anzahl Balkone: 1, Anzahl Terrassen: 1, Balkon-Terrassen-Fläche: 30,78 m², Bundesland: Niederösterreich
Anbieter der Immobilie
Ringsmuth Immobilien
Hackhofergasse 1, 1190 WIEN
Online-ID: 2d59l5b
Referenznummer: OBGC202402011635373715a559c9edc
Finde Angebote wie dieses
Günstige Immobilienfinanzierung einfach online berechnen
Persönliches Angebot berechnenWarum sehe ich diese Werbung? – Du siehst diese Werbung basierend auf Deiner Navigation auf unserer Website und der von Dir verwendeten Suchkriterien.
Diese Werbung wird bezahlt von durchblicker
Werbung melden
Hier geht es zu unserem Impressum, den Allgemeinen Geschäftsbedingungen, den Hinweisen zum Datenschutz und nutzungsbasierter Online-Werbung.