
RS-Wohnbau GmbH
Objektanfrage RS-Wohnbau
+49 ···
Nr. anzeigenDieses Angebot ist Teil des Neubauprojekts
K33 L|I|V|I|N|G - Kranichweg 33
Preise & Kosten
Provision für Käufer
provisionsfrei
Die Wohnung
Kategorie
Terrassenwohnung
Wohnungslage
Erdgeschoss
Derzeitige Nutzung
frei
Wohnanlage
Das Neubauprojekt
Energie & Heizung
Warum sehe ich diese Anzeige? – Du siehst diese Anzeige basierend auf Ihrer Navigation auf unserer Website und den Suchkriterien, die du verwendet hast.
Energieausweistyp
Bedarfsausweis
Gebäudetyp
Wohngebäude
Wesentliche Energieträger
Strom
Gültigkeit
seit 26.01.2024
Weitere Energiedaten
Haustyp
KfW 40
Heizungsart
Fußbodenheizung, Luft-/Wasser-Wärmepumpe
Details
Objektbeschreibung
Auf einem sonnigen Grundstück in Bestlage des begehrten Münchner Stadtteils Waldtrudering, in unmittelbarer Nachbarschaft zu den von uns in den vergangenen Jahren bereits erfolgreich errichteten Objekten im Kranichweg 29 und 31, entsteht nun unser drittes Projekt in dieser Straße - ein architektonisch anspruchsvolles...
Ausstattung
Energiesparendes Effizienzhaus 40 in bewährter RS-Wohnbau-Qualität
Um natürliche Ressourcen zu schonen und dem Objekt einen hohen Grad an Nachhaltigkeit zu verleihen, wird dieses mit modernster Wärmepumpentechnologie ausgestattet. Gleichzeitig wird seinen Bewohnern damit eine hohe Energieeffizienz...
Weitere Informationen
Hinweis zum Objekt
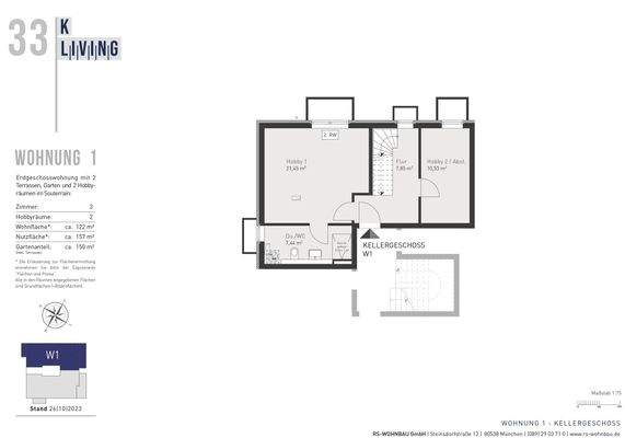
In diesem massiv in Ziegelbauweise erbauten Stadthaus ist nur noch eine EG-Gartenwohnung (mit taghellem Souterrain, ausgebaut in Wohnraumqualität) verfügbar !
Sichern Sie sich jetzt noch diese sehr attraktive Neubauwohnung in einer der schönsten Wohnlagen in...
Anbieter der Immobilie
RS-Wohnbau GmbH
Steinsdorfstr. 13, 80538 München
Online-ID: 2d6lj5p
Referenznummer: 51-115
Finde Angebote wie dieses
Hier geht es zu unserem Impressum, den Allgemeinen Geschäftsbedingungen, den Hinweisen zum Datenschutz und nutzungsbasierter Online-Werbung.