
Immobilien Ingo Schmidt
Herr Ingo Schmidt
049 ···
Nr. anzeigenPreise & Kosten
Provision für Käufer
3,57% inkl. MwSt.
Lage
Die ausgezeichnete Lage bietet Ihnen die Möglichkeit Ärzte, Apotheken, Schulen, beheiztes Freibad sowie diverse Einkaufsmöglichkeiten und Gastronomie innerhalb kürzester Zeit fußläufig zu erreichen. Die Stadt Weener verfügt über eine gut erhaltene Altstadt sowie einen Yachthafen mit guter Anbindung an die Ems. Die Umgebung...
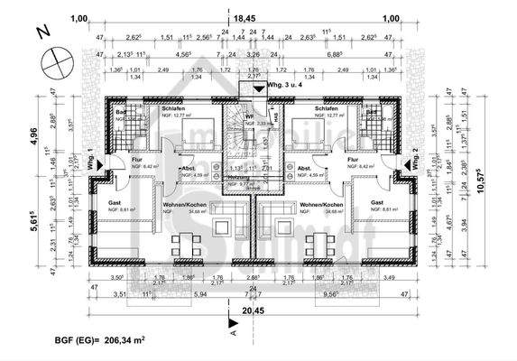
Die Wohnung
Kategorie
Apartment
Bezug
nach Fertigstellung
Wohnanlage
Energie & Heizung
Warum sehe ich diese Anzeige? – Du siehst diese Anzeige basierend auf Ihrer Navigation auf unserer Website und den Suchkriterien, die du verwendet hast.
Energieausweistyp
Bedarfsausweis
Gebäudetyp
Wohngebäude
Baujahr laut Energieausweis
2022
Wesentliche Energieträger
Wärmepumpe
Gültigkeit
08.09.2023 bis 07.09.2033
Effizienzklasse
A+
Endenergiebedarf
8,90 kWh/(m²·a)
Weitere Energiedaten
Heizungsart
Luft-/Wasser-Wärmepumpe
Details
Objektbeschreibung
Wir bieten hier 2 EG-Wohnungen mit Terrasse an! Der Preis ist pro Wohnung!
Genießen Sie Ihren Feierabend auf Ihrem eigenen Grundstück auf der nach Süden ausgerichteten Terrasse!
Sie suchen eine Top-Eigentumswohnung im Herzen von Ostfriesland? Hier entsteht Ihr Neubau! Ein modernes KFW 40+ Objekt mit...
Preisinformation
1 Stellplatz
Weitere Informationen
Sonstiges
Das Angebot ist freibleibend und unverbindlich. Es wurde nach den Angaben des Verkäufers erstellt. Zwischenverkauf und Irrtum sind vorbehalten. Eine Weitergabe an Dritte ist nicht gestattet.
Bitte haben Sie Verständnis dafür, dass es bei einer erhöhten Anfrage zu einem Bieterverfahren kommen...
Anbieter der Immobilie
Immobilien Ingo Schmidt
Norderstraße 19, 26826 Weener
Online-ID: 2d6ty5x
Referenznummer: 6119#BbbI6a
Finde Angebote wie dieses
Hier geht es zu unserem Impressum, den Allgemeinen Geschäftsbedingungen, den Hinweisen zum Datenschutz und nutzungsbasierter Online-Werbung.