Version: 8.26.0Navigation überspringen
Mietkosten auf Anfrage
2.307,1 m² Lagerfläche
Immowelt logo

Lagerhalle zur Miete - Erstbezug
Mietkosten auf Anfrage
2.307,1 m² Lagerfläche

NEUBAU! Projektierte Produktions- und Lagerhalle mit Büro im Gewerbegebiet "Im Brühl"

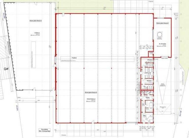
Die Gesamtnutzfläche des projektierten Gewerbeanwesens umfasst ca. 2.437,89 m² und wird 2025 / 2026 auf einem ca. 5.817 m² großen Grundstück im attraktiven Gewerbegebiet "Im Brühl" realisiert.

Die Gesamtnutzfläche in Höhe von ca. 2.437,89 m² teilt sich in der aktuellen Planungskonzeption wie folgt auf:

-Produktionshalle mit ca. 1.642,51 m²
-Lagerhalle mit ca. 664,60 m²
-Be- und Entladungsbereich mit ca. 112,50 m²
-Büro- und Sozialräume mit insgesamt ca. 130,78 m²



Der Büro- und Sozialbereich setzt sich im Detail wie folgt zusammen:

-Büro 1 ca. 21,09 m²
-Büro 2 ca. 15,27 m²
-Flur ca. 7,94 m²
-Eingangsbereich ca. 10,57 m²
-Abstellraum ca. 2,04 m²
-WC 1 ca. 6,11 m²
-WC 2 ca. 11 m²
-Umkleide Damen ca. 11,15 m²
-Umkleide Herren ca. 13,46 m²
-Aufenthaltsbereich und Küche ca. 22,41 m²
-WC Herren ca. 5,70 m²
-Technik ca. 4,04 m²

Alle Gebäudeteile sind miteinander verbunden, so dass das die internen Abläufe optimal aufeinander abgestimmt werden können. Sowohl die Produktionshalle als auch die Lagerhalle sind über ein jeweiliges Sektionaltor befahrbar bzw. erschlossen. Die Produktionshalle ist zudem über eine Laderampe andienbar.

Die Produktions- und Lagerflächen werden hohen Anforderungen gerecht und sind durch die Flexibilität der Flächen und Räumlichkeiten hinsichtlich einer Nutzung sehr vielseitig. Gleiches gilt ebenso für den Bürobereich. Die moderne Ausstattung garantiert hier ein kommunikatives und stilvolles Arbeiten in einem modernen Umfeld.

Bei diesen Gewerbemietflächen handelt es sich um einen Neubau und somit um einen Erstbezug. Durch den aktuellen Planungsstand ist eine flexible Aufteilung und Anpassung an eine bestimmte Nutzung bzw. auf Ihre Grundrisskonzeption unter Berücksichtigung aller baurechtlichen Bestimmungen und in Abstimmung grundsätzlich möglich. Auch Ihre Wünsche und Bedürfnisse bezüglich technischer Anforderungen können generell entsprechend noch berücksichtigt werden.

Weitere Informationen, Details und ausführliche Planungsunterlagen erhalten Sie gerne auf Anfrage. Verschaffen Sie sich einen persönlichen Eindruck und lassen Sie sich von uns ausführlich beraten. Wir stehen Ihnen gerne zur Verfügung.

Parkmöglichkeiten in Form von Außenstellplätzen in ausreichender Anzahl runden das Angebot ab.

Merkmale

  • Bezug: nach Absprache
  • 5.817 m² Grundstück
  • 36 Stellplätze: 36 Außen-Stellplätze
Einige Ausstattungsmerkmale:

-Luft-Wasser-Wärmepumpe
-Bodenbelag Industriebeton
-LED Beleuchtung
-weitere Ausstattung nach Abstimmung
-Zufahrt über Sektionaltore (Durchfahrtshöhe etwa 4,64 m)
-Tragkonstruktion - Stahlbau / Stahlbeton
-Außenwände - Stahlbau / Sandwichplatten
-Trennwände - Stahlbau / Mauerwerk
-Wände notwendiger Treppenräume - Stahlbau/ Mauerwerk
-Wände notwendiger Flure - Stahlbau/ Mauerwerk
-Dach - Stahlbau/ Trapezblech
-Notwendige Treppen - Stahlbau

Grundrisse

Grundrisse
1 / 1

Bausubstanz und Energie

  • Baujahr2025
  • Zustand der ImmobilieErstbezug
Immowelt logo

Mietkosten

Miete auf Anfrage
Provision für Mieter
3,57 Monatskaltmieten (inkl. 19 % Mwst.) inkl. MwSt.
Kaution
3 Monatskaltmieten
Weitere Preisinformationen
36 Stellplätze

Lage

address-icon
Lauffen an Neckar (74348)
Der Anbieter hat die genaue Adresse nicht freigegeben

Weitere Informationen

Sonstiges Der Verbraucher hat gemäß § 535 BGB ein Widerrufsrecht bei einem Fernabsatzvertrag ( § 312 c BGB neue Fassung) oder bei einem Vertragsabschluss außerhalb der Geschäftsräume des Makler ( § 312 b BGB neue Fassung).

Sie haben das Recht, binnen 14 Tagen ohne Angabe von Gründen den Maklervertrag zu widerrufen. Die Widerrufsfrist beträgt 14 Tage ab dem Tag des Vertragsabschlusses. Um Ihr Widerrufsrecht auszuüben, müssen Sie uns (Carl Gewerbeimmobilien, Wilhelmstraße 5a, 74072 Heilbronn, Tel. 07131 / 2076693 und mobil 0160 / 3508946, Email: mail@carl-gewerbeimmobilien.de) mittels einer eindeutigen Erklärung (z.B. ein mit Post versandter Brief oder einer Email an mail@carl-gewerbeimmobilien.de) über Ihren Entschluss, diesen Vertrag zu widerrufen, informieren. Zur Wahrung der Widerrufsfrist reicht es aus, dass Sie die Mitteilung über die Ausübung des Widerrufsrechts vor Ablauf der Widerrufsfrist absenden. Sofern wir für Sie vor Ablauf der Widerrufsfrist tätig werden sollen, benötigen wir von Ihnen eine schriftliche Bestätigung, dass Sie von dem gesetzlichen Widerrufsrecht Kenntnis erlangt haben und dass wir für Sie schon vor Ablauf der Widerrufsfrist tätig werden sollen.

Haftungsausschluss:

Sämtliche in diesem Exposé enthaltenen Angaben und Informationen basieren auf den uns von Dritten erteilten Auskünften und Informationen. Dargestellte Bilder und Grundrisse sind ggf. bearbeitet und / oder nachgestellt. Wir bemühen uns, möglichst vollständige und richtige Angaben zu erhalten und weiterzuleiten, eine Haftung für die Richtigkeit, Vollständigkeit und Aktualität dieser Angaben wird jedoch ausdrücklich ausgeschlossen. Eine rechtliche Gewährleistung wird nicht übernommen. Dieses Exposé stellt kein vertragliches Angebot dar. Zwischenverkauf und / oder Zwischenvermietung, Änderungen und Irrtümer bleiben vorbehalten.

Nachweis- und Vermittlungsprovision:

Die vom Mieter zu entrichtende Nachweis- und Vermittlungsprovision beträgt im Falle eines erfolgreichen Nachweises bzw. Vermittlung 3,57 Monatskaltmieten (inkl. 19 % MwSt.). Die vorstehend genannte vom Mieter zu entrichtende Provision ist bei Abschluss des Mietvertrages verdient und zur Zahlung fällig und wird dem Mieter nach Abschluss des Mietvertrages in Rechnung gestellt. Ferner darf Carl Gewerbeimmobilien, Wilhelmstraße 5a, 74072 Heilbronn auch für den Eigentümer provisionspflichtig tätig sein. Stichworte Lagerfläche: 2.307,11 m², Gesamtfläche: 2.437,89 m², Bürofläche: 130,78 m²

Weitere Services

Lust auf eine Besichtigung?
Eine Frage zur Immobilie?
Mit einer persönlichen Nachricht hast du bessere Chancen auf eine Antwort.
Mit der Nutzung der oben angegebenen Telefonnummer oder durch Klicken auf „Kontaktieren“ akzeptierst Du die Allgemeinen Nutzungsbedingungen, denen Du jederzeit widersprechen kannst. Weitere Informationen zum Datenschutz

Über den Anbieter

Wilhelmstraße 5a, 74072 Heilbronn
partner badge
Partnerschaft
Herr Daniel Carl
Herr Daniel CarlDein Kontakt
Online-ID: 26NAAG4AB31L
Referenznummer: JC388
Wie zufrieden bist du mit dieser Seite (nicht mit der Immobilie selbst)?