
RUHR REAL GmbH
Herr Leon Ostermann
+49 ···
Nr. anzeigenPreise & Kosten
zzgl. Nebenkosten
Provision für Mieter
provisionsfrei
Warum sehe ich diese Anzeige? – Du siehst diese Anzeige basierend auf Ihrer Navigation auf unserer Website und den Suchkriterien, die du verwendet hast.
Lage
Das Objekt befindet sich in der Nähe des sehr beliebten Teilmarkt Büroboulevard B1 und in unmittelbarer Nähe zum Phoenix See.
Die Autobahnen A1, A2, A40, A42, A44, A45 sowie der Flughafen sind in nur wenigen Minuten mit dem Auto erreichbar. Ferner ist eine optimale Anbindung an den ÖPNV über beispielsweise die U 47...
Büro-/Praxisfläche
Kategorie
Bürofläche
Baujahr
2025
Bezug
nach Vereinbarung
Derzeitige Nutzung
frei
Energie & Heizung
Warum sehe ich diese Anzeige? – Du siehst diese Anzeige basierend auf Ihrer Navigation auf unserer Website und den Suchkriterien, die du verwendet hast.
Weitere Energiedaten
Heizungsart
Zentralheizung
Details
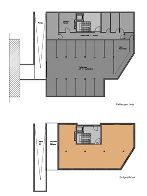
Objektbeschreibung
Das Neubauprojekt befindet sich am Remkamp Ecke Kohlensiepenstraße und ist nur wenige Gehminuten vom Phoenix-See entfernt. Das Projekt soll realisiert werden, sobald ein Ankermieter einen Mietvertrag abschließt, daher ist das genaue Bezugsdatum noch nicht bekannt.
Der Ausbau erfolgt nach Abstimmung mit den Mietern, sodass...
Ausstattung
. Sonnenschutz: außenliegend, elektrisch
. Bodenbelag: nach Mieterwunsch
. Kabelführung: Hohlraum- oder Doppelboden
. Beleuchtung: nach Vereinbarung
. Aufzug: Personenaufzug
. Barrierearm: ja, ebenerdiger Zugang
. Kühlung/ Lüftung: nach Vereinbarung
. EDV Verkabelung: CAT 7
. Küche: Anschlüsse...
Preisinformation
Nettokaltmiete: 14,90 EUR
Weitere Informationen
Sonstiges
Es gelten ausschließlich unsere AGB (www.ruhr-real.de/agb). Wir möchten Sie darauf hinweisen, dass die Angaben ausschließlich auf den uns vom Eigentümer übermittelten Unterlagen und Informationen basieren. Für Richtigkeit und Vollständigkeit übernehmen wir keine Gewähr. Zwischenvermietung...
Anbieter der Immobilie

RUHR REAL GmbH
Holsterhauser Platz 2, 45147 Essen
Online-ID: 2d8zj5p
Referenznummer: 3230/E1
Finde Angebote wie dieses
Hier geht es zu unserem Impressum, den Allgemeinen Geschäftsbedingungen, den Hinweisen zum Datenschutz und nutzungsbasierter Online-Werbung.