

SIVB
Herr Oliver Schmachtenberg
030 ···
Nr. anzeigenPreise & Kosten
Provision für Mieter
provisionsfrei
Warum sehe ich diese Anzeige? – Du siehst diese Anzeige basierend auf Ihrer Navigation auf unserer Website und den Suchkriterien, die du verwendet hast.
Lage
Der Standort befindet sich in zwischen Kurfürstendamm und Hohenzollerndamm. Durch die Nähe zum Hohenzollerndamm sowie zur Stadtautobahn und der AVUS ist der Standort aus dem gesamten Innenstadtbereich und aus dem Umland von Berlin leicht mit dem Auto erreichbar.
Bis zum S-Bahnhof Hohenzollerndamm und dem S-Bahn-Ring...
Büro-/Praxisfläche
Bezug
sofort
Derzeitige Nutzung
frei
Geschoss
2. Geschoss
Details
Objektbeschreibung
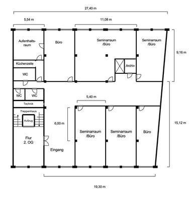
Zur Vermietung steht eine loftartige Büroetage im 2. OG eines klassischen fünfgeschossigen Bürohauses. Die Raumaufteilung und Raumausstattung werden hier für den Mieter individuell hergerichtet.
Zur vorhandenen Ausstattung gehören die üblichen Merkmale wie Teeküche und getrennte Sanitäranlagen sowie Server-Raum. Der...
Weitere Informationen
Stichworte
Serviceleistungen: Hausmeister
Sonstiges: Getrennte Damen- und Herren-WCs
Anbieter der Immobilie
SIVB
Leunaer Str. 7, 12681 Berlin

Online-ID: 2dacq5a
Finde Angebote wie dieses
Hier geht es zu unserem Impressum, den Allgemeinen Geschäftsbedingungen, den Hinweisen zum Datenschutz und nutzungsbasierter Online-Werbung.