
Kurt P. Schuhmann KG - Hausmakler seit 1951
Herr Meno Schuhmann
040 ···
Nr. anzeigenPreise & Kosten
Provision für Käufer
Bitte beachte, das Angebot beinhaltet bei Vertragsabschluss die Zahlung einer Provision. Weitere Informationen erhältst Du vom Anbieter.
Lage
Die grüne Umgebung prägt die Lage dieser zum Verkauf stehenden Wohnung. Alter Baumbestand, unterschiedliche Parks in dem näheren Umfeld wie der Loki-Schmidt-Garten, Hans-Christian-Andersen-Park und auch der bekannte historische Jenischpark schaffen einen Ortscharakter, den man mit den Elbvororten verbindet.
Ebenso besticht...
Die Wohnung
Kategorie
Maisonette
Wohnungslage
Dachgeschoss
Wohnanlage
Energie & Heizung
Warum sehe ich diese Anzeige? – Du siehst diese Anzeige basierend auf Ihrer Navigation auf unserer Website und den Suchkriterien, die du verwendet hast.
Weitere Energiedaten
Energieträger
Elektro
Haustyp
KfW 55
Heizungsart
Luft-/Wasser-Wärmepumpe
Details
Objektbeschreibung
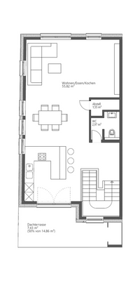
Die 149-m²-Obergeschosswohnung besteht aus vier Zimmern und drei Bädern bzw. WC, verteilt über zwei Geschosse und aus einer etwa 15 m² große Dachterrasse und einem Balkon.
Zusätzlich ist ein Kellerraum von 21 m² Fläche der Wohnung zugehörig.
Die Bauausführung wird als zweigeschossiges Gebäude zuzüglich eines...
Weitere Informationen
Besichtigungstermine
Nach Vereinbarung
Anbieter der Immobilie
Kurt P. Schuhmann KG - Hausmakler seit 1951
Elbchaussee 183 a, 22605 Hamburg
Online-ID: 2dasr5x
Referenznummer: JSTR003
Finde Angebote wie dieses
Hier geht es zu unserem Impressum, den Allgemeinen Geschäftsbedingungen, den Hinweisen zum Datenschutz und nutzungsbasierter Online-Werbung.