
Markus Fugel
Herr Nikolas Ronczka
015 ···
Nr. anzeigenPreise & Kosten
Kaution
16500
Provision für Mieter
Bitte beachte, das Angebot kann bei Vertragsabschluss die Zahlung einer Provision beinhalten. Weitere Informationen erhältst Du vom Anbieter.
Warum sehe ich diese Anzeige? – Du siehst diese Anzeige basierend auf Ihrer Navigation auf unserer Website und den Suchkriterien, die du verwendet hast.
Lage
Die Gemeinde Jahnsdorf befindet sich etwa zehn Kilometer südwestlich des Chemnitzer Stadtzentrums und sechs Kilometer nordöstlich der Großen Kreisstadt Stollberg/Erzgeb. Innerhalb des rund 26 km² großen Gemeindegebietes befindet sich der Hauptort Jahnsdorf im Südosten. Das Objekt befindet sich direkt am Verkehrslandeplatz...
Die Industriefläche
Kategorie
Produktionshalle
Baujahr
1994
Bezug
sofort
Energie & Heizung
Warum sehe ich diese Anzeige? – Du siehst diese Anzeige basierend auf Ihrer Navigation auf unserer Website und den Suchkriterien, die du verwendet hast.
Energieausweistyp
Bedarfsausweis
Gebäudetyp
Nicht-Wohngebäude
Wesentliche Energieträger
Flüssiggas
Endenergiebedarf
377,40 kWh/(m²·a)
Weitere Energiedaten
Energieträger
Flüssiggas
Details
Objektbeschreibung
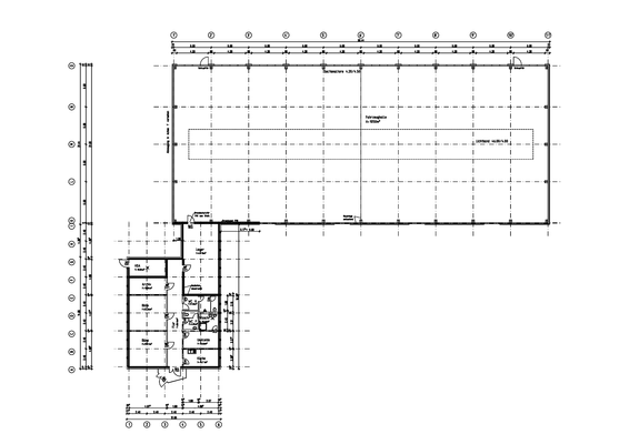
Gebäude für Produktion, Werkstätten oder Lagergebäude mit Büro- und Sozialräumen in Jahnsdorf zu vermieten. Stahlrahmenbauweise (Raster 5 m - 5,50 m) mit Sandwichelementen ohne Innenwände, Flachdach mit Oberlicht, Tragschale aus Trapezblechprofilen mit Bitumendichtbahnen. Die Verbrauchsabhängigen Nebenkosten (Wasser...
Ausstattung
Hallenhöhe: 4,82 m - 5,33 m - 4,82 m
Hallenmaße: 50 m x 22 m
Andienung ebenerdig über 10 Rolltore (Maße je Breite 4 m Höhe 4,50 m)
Heizung: steuerbare Decken- und Wandheizkörper / in Halle Gebläseheizung
Energie: 160 kVA
Bauart: Stahlrahmenbauweise (Raster 5 m - 5,50 m) mit Sandwichelementen ohne...
Weitere Informationen
Besichtigungstermine
Besichtigung nach Absprache möglich!
Anbieter der Immobilie
Markus Fugel
Hofer Straße 7d, 09224 Chemnitz-Mittelbach
Online-ID: 2dcjn5r
Finde Angebote wie dieses
Hier geht es zu unserem Impressum, den Allgemeinen Geschäftsbedingungen, den Hinweisen zum Datenschutz und nutzungsbasierter Online-Werbung.