
REAL Projektbau GmbH
Herr Thomas Kutter
037 ···
Nr. anzeigenPreise & Kosten
zzgl. Nebenkosten
Provision für Mieter
2 Nettokaltmieten zzgl. MwSt.*
*bei einer Mietvertragslaufzeit bis 4 Jahre,
3 Nettokaltmieten bei einer Laufzeit ab 4 Jahre, jeweils zzgl. MwSt.
Warum sehe ich diese Anzeige? – Du siehst diese Anzeige basierend auf Ihrer Navigation auf unserer Website und den Suchkriterien, die du verwendet hast.
Lage
Lichtenstein ist eine Kleinstadt mit knapp 11. 000
Einwohnern und liegt zwischen Chemnitz und
Zwickau. Das Erscheinungsbild der Stadt ist sehr
positiv, auf Grund seiner mittelalterlichen Struktur
verbunden mit einer sehr gepflegten Innenstadt.
Durch die Nähe zu Zwickau und der Lage innerhalb
des als...
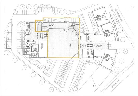
Die Ladenfläche
Baujahr
1996
Details
Objektbeschreibung
Die zu vermietende Fläche befindet sich im
Erdgeschoss und ist wie folgt aufgeteilt:
• ca. 952 m² Verkaufsfläche
• ca. 293 m² Lagerfläche sowie Nebenräume
• ca. 100 m² Abstellfläche, bzw. Be- und
Entladefläche im Außenbereich
• ca. 50 ebenerdig vorgelagerte Parkplätze
Der Zugang zur Verkaufsfläche...
Weitere Informationen
Allgemeines
Besichtigung:
Eine Besichtigung kann nach Terminvereinbarung durchgeführt
werden. Terminabsprache unter:
Tel.: 0371/367100 oder per E-Mail an: pm@info-real.de
Bei näherem Interesse lassen wir Ihnen gern ein Exposé sowie weitere Unterlagen zukommen.
Anschrift:
Kaßbergstraße 26...
Anbieter der Immobilie
REAL Projektbau GmbH
Kaßbergstraße 26, 09112 Chemnitz
Online-ID: 2dd745u
Referenznummer: 79497388
Finde Angebote wie dieses
Hier geht es zu unserem Impressum, den Allgemeinen Geschäftsbedingungen, den Hinweisen zum Datenschutz und nutzungsbasierter Online-Werbung.