

A. REICHENBACH IMMOBILIEN & FINANZIERUNG
Herr Andre Reichenbach
034 ···
Nr. anzeigenPreise & Kosten
Provision für Käufer
provisionsfrei
Das Haus
Kategorie
Bungalow
Baujahr
2023
Energie & Heizung
Warum sehe ich diese Anzeige? – Du siehst diese Anzeige basierend auf Ihrer Navigation auf unserer Website und den Suchkriterien, die du verwendet hast.
Weitere Energiedaten
Haustyp
Massivhaus
Energieträger
Elektro, Solar
Heizungsart
Fußbodenheizung, Luft-/Wasser-Wärmepumpe
Details
Objektbeschreibung
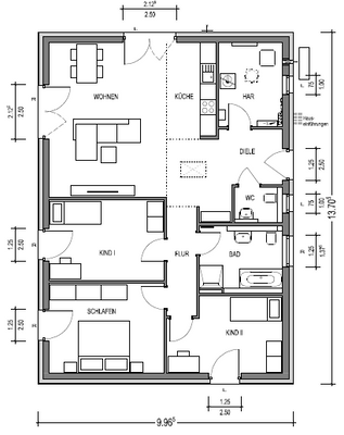
Zum Verkauf steht ein massives Wohnhaus im Bungalowstil mit ca. 112 m² Wohnfläche, welches auf Ihrem Grundstück innerhalb von 4 Monaten neu errichtet wird.
Im Kaufpreis sind Planungsleistungen, Statik, Bauantrag/Bauanzeige und ein Versicherungspaket inklusive!
Der Bungalow wird schlüsselfertig bis auf...
Weitere Informationen
Sonstiges
Anfragen gerne telefonisch oder per Mail stellen!
FINANZIERUNG:
Gerne biete ich Ihnen die passende Finanzierung zu Ihrer Immobilie.
Auch ohne Eigenkapital!
ACHTUNG: Sollten Sie ein anderes Objekt gefunden haben, so biete ich Ihnen gerne auch hierfür eine günstige Baufinanzierung und meine...
Dokumente
Anbieter der Immobilie
A. REICHENBACH IMMOBILIEN & FINANZIERUNG
Dommitzscher Straße 5, 04849 Bad Düben

Online-ID: 2de7p56
Finde Angebote wie dieses
Hier geht es zu unserem Impressum, den Allgemeinen Geschäftsbedingungen, den Hinweisen zum Datenschutz und nutzungsbasierter Online-Werbung.