

Philipp Zimmermann Immobilien GmbH & Co. KG
Herr Philipp Zimmermann
+49 ···
Nr. anzeigenPreise & Kosten
Provision für Käufer
provisionsfrei
Lage
Rathausstraße 1 - Bodman-Ludwigshafen
Diese Neubau Eigentumswohnungen entstehen in seenaher, sehr guter, zentraler und dennoch sehr ruhiger Wohnlage von "Ludwigshafen".
Das Bodenseeufer mit Promenade sowie das Strandbad sind in ca. 3 Gehminuten erreichbar.
Bodman-Ludwigshafen besteht, wie der Name schon...
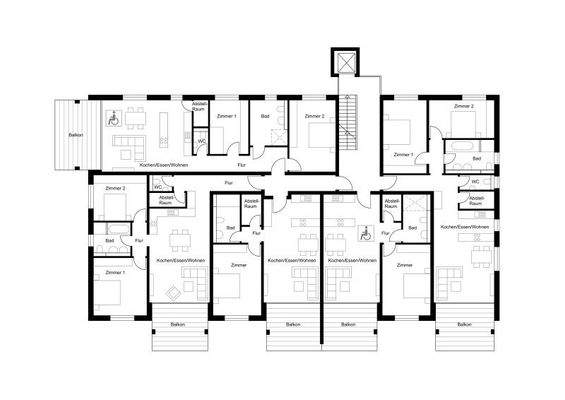
Die Wohnung
Wohnungslage
1. Geschoss
Bezug
Frühjahr 2026
Wohnanlage
Energie & Heizung
Warum sehe ich diese Anzeige? – Du siehst diese Anzeige basierend auf Ihrer Navigation auf unserer Website und den Suchkriterien, die du verwendet hast.
Energieausweistyp
Bedarfsausweis
Gebäudetyp
Wohngebäude
Baujahr laut Energieausweis
2024
Gültigkeit
bis 13.12.2033
Effizienzklasse
A+
Endenergiebedarf
22,00 kWh/(m²·a)
Weitere Energiedaten
Energieträger
Solar
Heizungsart
Fußbodenheizung, Luft-/Wasser-Wärmepumpe, Zentralheizung
Details
Objektbeschreibung
Das Projekt mit insgesamt 15 Eigentumswohnungen wird nach den neuesten Vorgaben des GEG erstellt und bietet somit einen Top Energiestandart - Gebäudeeffizienzklasse A+.
Alle Wohnungen sind mit Fußbodenheizung ausgestattet, diese wird über eine Luft-Wärmepumpe beheizt. Eine Photovoltaikanlage produziert den eigenen Strom...
Ausstattung
Die Wohnungen werden sehr wertig mit Holz-Dielenboden und großformatigen Fliesen ausgestattet.
Sie können Ihre Wohnung individuell nach Ihren Wünschen ausstatten und so jeder Wohnung ihren individuellen Charakter verleihen.
Bei weiterem Interesse lassen wir Ihnen gerne weitere Unterlagen und eine Ausführliche...
Weitere Informationen
Sonstiges
Der Endenergiebedarf des Gebäudes beträgt 22 kWh/(m² a) - Energieeffizienzklasse A+.
Gebäude nach neuester GEG 2024 mit Luft- Wärmepumpe und Photovoltaik.
Im Untergeschoss des Anwesens ist eine Tiefgarage mit insgesamt 14 Stellplätzen verfügbar. Im Außenbereich sind weitere 16 Außenstellplätze...
Anbieter der Immobilie
Philipp Zimmermann Immobilien GmbH & Co. KG
Leinerstraße 20, 78462 Konstanz

Online-ID: 2deb454
Referenznummer: E-266-6
Finde Angebote wie dieses
Hier geht es zu unserem Impressum, den Allgemeinen Geschäftsbedingungen, den Hinweisen zum Datenschutz und nutzungsbasierter Online-Werbung.